



































































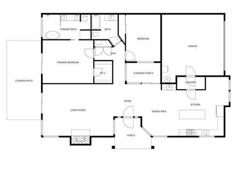
Beautifully updated and thoughtfully redesigned, this home offers more than $100,000 in recent improvements and a fresh, open feel throughout, along with an opportunity to convert the layout into a 3-bedroom home. A proposed floor plan modification would create an additional bedroom and closet within the existing nook area, along with repositioning the kitchen island and relocating the refrigerator. This concept is supported by a quote of approximately $7,500 and includes flooring and cabinet modifications to ensure all finishes match with new materials. The kitchen is the centerpiece of the renovation, where the original low ceiling was raised to a vaulted design, creating a bright, airy atmosphere that transforms the heart of the home. The wall between the kitchen and dining room was removed as part of a well-planned update that expands the kitchen’s footprint and creates an open connection between the main living areas. Just off the dining area, a charming atrium brings natural light into the home and creates a peaceful spot for morning coffee, plants, or outdoor relaxation. The remodeled kitchen features new custom cabinetry, striking gold-vein quartz countertops, updated fixtures, and an enlarged layout ideal for cooking, gathering, and entertaining. New wide-plank flooring, soft neutral paint, updated lighting, and refreshed finishes throughout contribute to the home’s warm, cohesive style. The primary suite has been reimagined into a comfortable retreat with a beautifully upgraded spa inspired bath that includes a custom double vanity, a walk-in shower with updated quartz surround, a freestanding soaking tub, a private water closet, creating a calm atmosphere. The secondary bathroom has also been refreshed with a new wood vanity, gold-vein quartz countertop, and updated light fixture, providing a clean and inviting space that complements the home’s overall design. Additional improvements include improved interior flow, enhanced sightlines between rooms, upgraded hardware, thoughtful lighting selections, and refinished interior surfaces. Furniture added via virtual staging to illustrate furnishing possibilities. Located near local dining, shopping, parks, and area conveniences, this home blends modern updates with an inviting layout designed for everyday living. The extensive enhancements, redesigned kitchen and primary suite, and cohesive finishes throughout create an appealing move-in opportunity in the heart of Anaheim Hills.