











































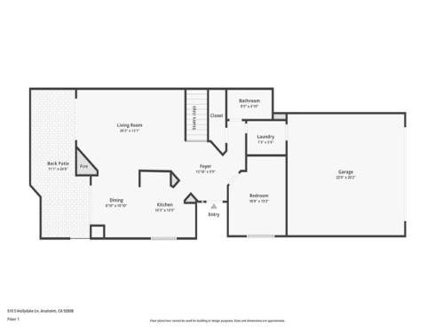
Welcome to the Laurelwood Community, where comfort, style, and a touch of “finally, a place that checks all the boxes” come together. This beautifully upgraded 3-bedroom, 3-bathroom end-unit townhome offers 1,615 square feet of smartly designed living space, starting with the wood-look tile flooring that spans the entire first level. The kitchen delivers on both form and function with quartz counters, ample cabinetry, and stainless steel appliances—because yes, you can have good taste and good storage at the same time. A main-floor bedroom and full bath offer ideal flexibility for guests, in-laws, or that home office you swear you’re going to use. Upstairs, you’ll find two spacious en suite bedrooms, including a remodeled primary suite featuring dual sinks, a cedar-lined walk-in closet, and a walk-in shower that basically begs you to linger. Fresh brand-new carpet keeps the second floor feeling plush, while the enclosed patio out back is perfect for relaxing or squeezing in some outdoor time without leaving home. Located at the quiet rear portion of the community with ample guest parking, this home also enjoys access to two sparkling community pools and spas, because California living just hits different with options. Top it off with a 2-car attached garage, inside laundry room and walk-ability to restaurants, grocery stores, and other destinations and you’ve got a turnkey home that blends convenience, comfort, and elevated style in all the right ways.