












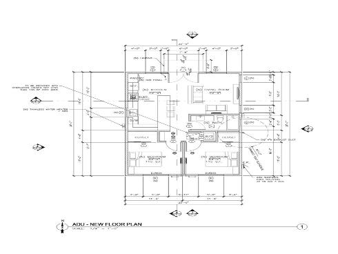
209 N Dahlia Dr offers a rare opportunity to step into a thoughtfully planned project where approximately seven months of design, engineering, and permitting have already been completed by the seller. Approved plans and active permits are in place to transform the main residence into a 3 bedroom and 2 bathroom home with a dedicated laundry room. The home has been taken down to framing, creating a clean slate for the next phase of construction. Underground sewer, water, and gas work has been completed, inspected and signed off by the city at the rough stage. The plans also include a detached ADU, approximately 795 sq ft, designed as a 2 bedroom, 1 bathroom unit. The ADU plans are fully approved by the City of Anaheim and the foundation is prepped and ready for concrete pour. This property allows a buyer to take over at a stage where the vision is approved, the groundwork is underway, and the remaining construction can be completed to their own preferences and timeline. Buyer to verify all plans, permits, square footage, and construction status with the City of Anaheim.