















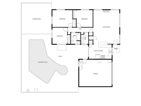
Welcome to this move-in ready Anaheim pool home offering 3 bedrooms, 1.5 bathrooms of comfortable living on a spacious 6,000 sq ft lot. Built in 1956, this home delivers timeless charm paired with smart modern upgrades you’ll appreciate. Inside, enjoy warm wood floors, newer recessed lighting throughout, and an open kitchen and dining area designed for both everyday living and entertaining. The kitchen features wood cabinetry, a full pantry, and a breakfast bar that flows seamlessly into the dining space, perfect for hosting or casual meals. The bright and spacious living room is filled with natural light and enhanced by a cozy gas fireplace. Down the hall, you’ll find three bedrooms, one full bathroom, and an additional half bathroom, offering a functional layout ideal for families or guests. Thoughtful upgrades completed in recent years include a brand-new roof (2025), fresh interior and exterior paint (2025), rewired electrical panel, fully upgraded copper plumbing with galvanized lines removed, double-pane windows (excluding rear slider), and a furnace replaced approximately two years ago. The home is cooled with wall A/C units and enhanced by ceiling fans for added comfort. Step outside to your private backyard oasis, featuring a sparkling pool recently filled with fresh water, along with a working pool pump and a heater, ideal for entertaining, relaxing, and enjoying Southern California living year-round. The extra-large driveway accommodates up to six cars, a rare and valuable feature. In the garage, you’ll find ample room for additional storage, along with the washer and dryer, which are included. The home also features automatic front yard sprinklers for easy maintenance. This is a fantastic opportunity to own a well-maintained home with big-ticket upgrades already completed, located in an established Anaheim neighborhood close to shopping, dining, and freeway access. This home may also qualify for a $20k homebuyer grant program for qualified homebuyers. Ask your agent for details! 2136 W. Clover Avenue; You Will LOVE Living Here!