714-914-4996

868 S Calle Venado ,
Anaheim, CA 92807

$1,800,000

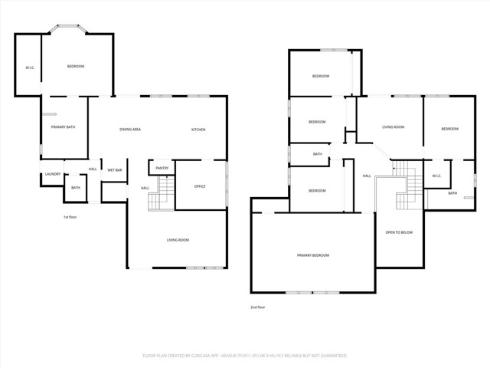
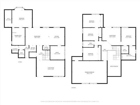
This expansive Anaheim Hills residence offers 4–5 bedrooms and 4 bathrooms, set in a quiet no-HOA enclave with no rear neighbors and breathtaking panoramic views of the canyon, mountains, and nature reserve. Enjoy peaceful sunrises, exceptional privacy, and a highly desirable hillside setting. Designed for entertaining and everyday comfort, the home features a large great room ideal for a home theater, two wet bars, seamless indoor-outdoor living, a wrap-around view deck, multiple patios, indoor and outdoor BBQ areas, and a private spa retreat. The flexible layout includes a permitted downstairs primary suite with beautiful views, a second primary bedroom upstairs, and two office spaces—perfect for multi-generational living or working from home. Bright living areas capture natural light and scenic outlooks throughout. Additional highlights include low-maintenance landscaping, automatic attic ventilation, extra storage shed, built-in garage cabinetry, newer roof, updated HVAC and water heater, water softener and filtration system, and direct access toward canyon trails. Layout note: Tax records reflect 4 bedrooms and 3 bathrooms; the home now offers 4 bathrooms by permit, with a potential 5th bedroom conversion without permits. Buyer to verify. A rare opportunity to own a private view home offering space, flexibility, and tranquil Anaheim Hills living.

Basic Information

MLS #:
PW26029519

Price:
$1,800,000

Price
(per sq ft):
$521.00

Address:
868 S Calle Venado ,
Anaheim, CA 92807

MLS Area:
77 - Anaheim Hills

Subdivision:
Other (OTHR)

Property
Type:
Single Family Residence

Days on Market:
0

Status:
Active

Bedrooms:
5

Bathrooms:
4

Full Baths:
4

Size (sq ft):
3,454 sq ft

Lot Size:
6,000 sq ft

Year Built:
1975

Sale Type:
Standard

Rooms in Home

Rooms:
Converted Bedroom, Living Room, Main Floor Primary Bedroom, Primary Bathroom, Primary Bedroom, Primary Suite, Walk-In Closet

Eating Area:

Laundry:
Inside

Entry Location:
1

Interior Features

Fireplace:
None

Cooling:
Central Air

Heating:

Floor:

Appliances:
Built-In Range, Dishwasher, Microwave, Refrigerator

Interior Features:
Two Story Ceilings

Security:

Accessibility:

Garage and Parking

Garage:
Attached

Garage:
3 Spaces

Carport:
0 Spaces

Parking:
Direct Garage Access

Home Owners Association

HOA Dues 1:
$0.00 /

HOA Dues 2:
$

HOA Amenities: 

Utilities

Water:
Public

Utilities:

School Information

District:
Orange Unified

Elementary:

Middle:

High:

Exterior Features

Pool:
None

Spa:

Patio:

View:
Canyon

Construction:

Foundation:

Roof:

Windows:

Common Walls:
No Common Walls

Levels:
Two

Lot Features:
Bluff, Greenbelt, Landscaped

Additional Information

County:
Orange

Senior Community:
No

Community Features:
Sidewalks, Street Lights

Other Structures:

Structure Condition:
Turnkey

Direction Faces:

Listed by:
Ryan Banderas, Broker , Ryan Banderas , 01119501

Co-Listed:

Last
Updated:
2/9/2026 3:55 PM

868 S Calle Venado ,
Anaheim, CA 92807