


















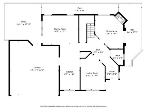
Fantastic opportunity to live in the highly coveted community of Eastside Costa Mesa, this 4 bedroom, 2.5 bath detached home boasts over 2000sf and lots of potential! As you enter, you're greeted by a bright, formal entryway, with tile floors and a powder room with vessel bowl sink. There are wood floors throughout most of the main floor, the family room has lots of natural light from glass doors leading opening to the beautifully landscaped patio. The kitchen has white cabinetry, tiled granite countertops, stainless steel appliances and double wall oven. The living room has fireplace and French doors leading to wrap-around patio. The primary suite has cathedral ceilings, walk-in closet, plantation shutters and fireplace open to bathroom. The Primary bathroom features a built-in tub, separate shower and double sink vanity. The nice size secondary bedrooms have high ceilings, two of which have walk-in closets. Laundry room is conveniently located upstairs and has storage cabinetry with sink. The home is in mostly original condition, price reflects need for cosmetic updates. Walking distance to top-rated schools, community parks, shopping and dining! Along with easy access to John Wayne Airport, South Coast Plaza, OC Fairground, Newport Back Bay trails, Balboa Island and Fashion Island.