










































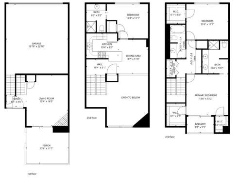
Welcome to this beautifully updated 3 bedroom, 3 bath residence offering approximately 1,650 square feet of refined living space in one of Costa Mesa's most convenient and desirable locations. Thoughtfully designed with comfort and style in mind, this home blends modern upgrades with a warm, inviting ambiance throughout. As you enter, you are greeted by a spacious living room with cozy fireplace, soaring ceilings and light filled spaces enhanced by laminate flooring that flow seamlessly throughout the entire home. Oversized sliding glass doors off the living room open to a private front patio providing that perfect outdoor retreat area for that perfect blend of indoor and outdoor living. The second level connects seamlessly to the living room and features an updated kitchen with granite countertops, sleek stainless steel appliances, a breakfast peninsula, modern cabinetry, and a roomy pantry. The adjacent dining area overlooks the living room below creating an open and spacious dining experience. Also on this level, you will find a comfortable bedroom or home office with an en-suite bathroom. The top level showcases the primary suite and serves as a true retreat. With two generous walk-in closets, one with built ins, and a private balcony that captures tranquil park and pool views and brings natural light and serenity into the room. The beautifully remodeled en-suite bath includes dual sinks, granite countertops and designer tile in the shower. Just down the hall you will find a third bedroom with a large walk-in closet, another full bath, and a convenient upper-level laundry closet complete with included washer and dryer. Additional highlights include a two-car attached garage, keyless entry, a ring doorbell and access to a well-maintained community offering a refreshing pool and spa just steps away. Directly next door is Wilson Park, a beautifully landscaped neighborhood park with children’s play equipment, open green space, and a sand volleyball court—an incredible amenity right outside your front door. Situated minutes from the 405 and 55 freeways, the toll road, a wide variety of dining options, John Wayne Airport, and the OC Fairgrounds, this home delivers unmatched convenience in every direction. Whether you’re commuting, traveling, or enjoying the best of the local lifestyle, the location is truly exceptional.