714-914-4996

700 Hamilton Street ,
Costa Mesa, CA 92627

$1,200,000

Welcome to 700 Hamilton Street, a thoughtfully remodeled Mid-Century modern home in the heart of Costa Mesa’s beloved Westside. Nearly every inch has been updated with high-end finishes and stylish touches—from the fresh exterior paint and brand-new roof on both the house and garage, to fully replaced electrical throughout and a finished garage offering future potential as an ADU, studio, gym, or bonus living space. Inside, the home balances warmth and clean design with exposed and newly stained wooden beams, custom shutters, recessed lighting, and new French doors off the living room that fill the space with natural light. The remodeled kitchen showcases modern tilework, elevated finishes, and a custom built-in banquette with hidden storage—perfect for everyday living. Both bathrooms have been reimagined with updated tile, quality fixtures, and curated wallpaper, while the guest rooms have been refreshed with a clean, move-in-ready feel. The home sits on a generous lot with a large front and backyard, offering mature lime and avocado trees and plenty of room to relax, garden, or entertain. Whether hosting friends, enjoying the sunshine, or dreaming up future outdoor projects, the space is ready for it all. And the location is truly ideal: stroll to Neat Coffee, MoonGoat, and nearby restaurants, or hop on the adjacent bike trail straight to the beach. Fairview Park, Talbert Park, and countless outdoor activities are all just minutes away. 700 Hamilton blends thoughtful upgrades, modern style, and a lifestyle rooted in convenience, community, and coastal living—all surrounded by genuinely great neighbors.

Basic Information

MLS #:
PW25261689

Price:
$1,200,000

Price
(per sq ft):
$1,000.00

Address:
700 Hamilton Street ,
Costa Mesa, CA 92627

MLS Area:
C2 - Southwest Costa Mesa

Subdivision:
Westside Costa Mesa Central (WCMC)

Property
Type:
Single Family Residence

Days on Market:
15

Status:
Active Under Contract

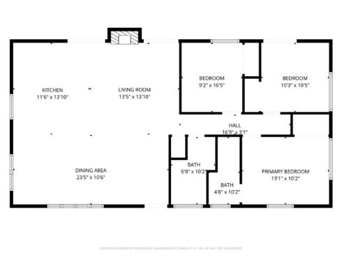
Bedrooms:
3

Bathrooms:
2

Full Baths:
2

Size (sq ft):
1,200 sq ft

Lot Size:
6,120 sq ft

Year Built:
1956

Sale Type:
Standard

Rooms in Home

Rooms:
All Bedrooms Down, Kitchen, Living Room

Eating Area:
Area, Breakfast Nook

Laundry:
In Garage

Entry Location:
Front

Interior Features

Fireplace:
Living Room

Cooling:
Central Air

Heating:
Central

Floor:
Vinyl

Appliances:
Dishwasher, Electric Range, Gas Oven, Refrigerator

Interior Features:
Recessed Lighting

Security:
Wired for Alarm System

Accessibility:
None

Garage and Parking

Garage:
Detached

Garage:
2 Spaces

Carport:
0 Spaces

Parking:
Converted Garage, Driveway, Garage

Home Owners Association

HOA Dues 1:
$0.00 /

HOA Dues 2:
$

HOA Amenities: 

Utilities

Water:
Public

Utilities:

School Information

District:
Newport Mesa Unified

Elementary:

Middle:

High:

Exterior Features

Pool:
None

Spa:
None

Patio:

View:
None

Construction:

Foundation:

Roof:
Shingle

Windows:
Shutters, Triple Pane Windows

Common Walls:
No Common Walls

Levels:
One

Lot Features:
Back Yard, Corner Lot, Front Yard, Sprinkler System

Additional Information

County:
Orange

Senior Community:
No

Community Features:
Sidewalks

Other Structures:

Structure Condition:
Turnkey, Updated/Remodeled

Direction Faces:

Listed by:
Torelli Realty , Kendra Fisher , 02157903

Co-Listed:

Last
Updated:
12/4/2025 10:57 PM

700 Hamilton Street ,
Costa Mesa, CA 92627