714-914-4996

6517 Orangewood ,
Cypress, CA 90630

$779,000

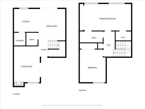
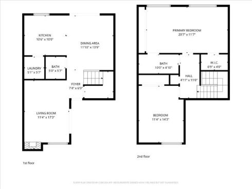
Looking for a low maintenance and comfortable TURNKEY home in a great location? Here is the opportunity to live in the sought-after Cypress Village; a wonderful & much desired community in Cypress with lovely neighborhoods close by. This abode is all you need to enjoy the good life in a home of your own. Have guests enter through a privacy gate into a quaint courtyard that welcomes visitors to this ideal two-bedroom, duel level floor-plan giving close to 1400 sq. ft. of living space. Upon entering, the living room provides ample room for entertaining, featuring a gas fireplace with shimmering crystals to enjoy along with the fire & a view of that charming courtyard and Manzanita Park. Enjoy time in the remodeled kitchen highlighted with upgraded countertops and glass tile back-splash, Gas stovetop & Stainless Steel refrigerator plus bar seating for a quick meal! Off the kitchen is an area for your dining needs and access to the rear yard. Convenient interior laundry room for the washer & dryer (included) and a newer hot water heater with expansion tank. The rear yard is easy to care for & provides rear of the home entry & direct access to the 2 car garage. On the way upstairs, you won't be able to miss the custom wrought-iron stair-railing along with the modern lighting that adds a touch of refinement. The primary bedroom is spacious and features two closets - 1 is a roomy walk-in and the other has upgraded mirrored doors. 2nd Bedroom is also ample provides all the space you need. The upstairs bathroom has been upgraded & has marble features in the shower/tub (tub is extra deep) and upgraded shower-head features. A new Moen Flo-Smart Water Monitor and Shutoff was recently added for piece of mind. This property also shines with many special touches: Central A/C, Elegant Crown Molding, Mounted TVs, Wood Shutters, Double-Pane Windows, Exterior key pad entry, Wrought-Iron yard gates, Recessed Lighting - all this....PLUS resort like Living! Cypress Village offers 3 Pools and sizable spa, Tennis Courts, Pickle-ball Courts, 3 Club houses and walking paths between the homes that are green and relaxing, a perfect place to walk your pup or get your steps in. Visitor parking is sprinkled generously around this property. Enjoy this quality OC location, close proximity to the local stores, freeways or enjoy close by beaches - Huntington, Seal and Sunset - minutes to Long Beach too. It's an opportunity to live the OC life and resort lifestyle. The good life's waiting!

Basic Information

MLS #:
IG26020318

Price:
$779,000

Price
(per sq ft):
$559.00

Address:
6517 Orangewood ,
Cypress, CA 90630

MLS Area:
57 - Cypress N of Orangewood, S Of Katella

Subdivision:
Cypress Village Gardens (CYGR)

Property
Type:
Single Family Residence

Days on Market:
32

Status:
Active Under Contract

Bedrooms:
2

Bathrooms:
2

Full Baths:
1

Size (sq ft):
1,392 sq ft

Lot Size:
2,054 sq ft

Year Built:
1974

Sale Type:
Standard

Rooms in Home

Rooms:
Walk-In Closet, Laundry, All Bedrooms Up, Kitchen, Living Room

Eating Area:
Breakfast Counter / Bar, Dining Room

Laundry:
Individual Room

Entry Location:
Level

Interior Features

Fireplace:
Living Room

Cooling:
Central Air

Heating:
Central

Floor:
Tile, Carpet

Appliances:
Gas Cooktop, Water Heater, Disposal, Microwave, Built-In Range, Refrigerator, Gas Water Heater, High Efficiency Water Heater, Dishwasher

Interior Features:

Security:
Carbon Monoxide Detector(s), Wired for Alarm System, Smoke Detector(s)

Accessibility:

Garage and Parking

Garage:
Attached

Garage:
2 Spaces

Carport:
0 Spaces

Parking:
Garage, Garage - Two Door

Home Owners Association

HOA Dues 1:
$398.42 / Monthly

HOA Dues 2:
$

HOA Amenities: 
Pets Permitted, Pickleball, Tennis Court(s), Pool, Clubhouse, Spa/Hot Tub, Picnic Area

Utilities

Water:
Public

Utilities:
Natural Gas Connected,Sewer Connected,Electricity Connected,Water Connected

School Information

District:
Garden Grove Unified

Elementary:

Middle:
BELL

High:
PACIFI

Exterior Features

Pool:
Association

Spa:
Association

Patio:
Front Porch, Concrete, Patio

View:
Park/Greenbelt

Construction:

Foundation:
Slab

Roof:
Common Roof

Windows:
Double Pane Windows, Screens

Common Walls:
2+ Common Walls, No One Below, No One Above

Levels:
Two

Lot Features:
Back Yard

Additional Information

County:
Orange

Senior Community:
No

Community Features:
Biking, Street Lights, Sidewalks, Park

Other Structures:

Structure Condition:
Turnkey, Updated/Remodeled

Direction Faces:

Listed by:
Re/Max Partners , Jeannie Hallgrimson , 01052428

Co-Listed:

Last
Updated:
3/17/2026 5:22 PM

6517 Orangewood ,
Cypress, CA 90630