































































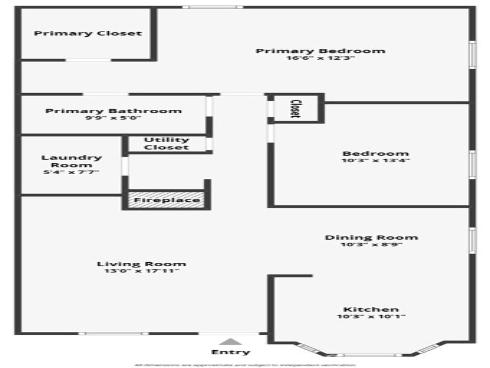
Welcome to the community of Influential Townhomes. Featuring a charming 2-bedroom townhouse nestled in a serene complex with mature breezy trees and greenbelts. A nice end unit with nobody above or below. Upon entering, laminate flooring flows throughout the home. The living room beckons you to unwind by the cozy fireplace, accented with crown molding and a beautiful built-in bookshelf. The adjoining dining area is spacious for sit down meals. The upgraded kitchen stands as the heart of the home, boasting sleek countertops, glass cabinetry, ample cabinet space, and a picturesque view from your kitchen sink. The primary bedroom is of generous size that includes a private vanity area and a large walk-in closet with built-in shelving. An additional bedroom is currently set-up for an at home office. Featuring built in desk and drawers. Hallway bathroom with tub and shower combination allows direct access to primary bedroom. Along with dual-pane windows, the central heating and air keep your home at a comfortable temperature. Who doesn’t like the convenience of your own inside laundry room? Take advantage of outdoor living on the private deck to relax on a summer evening. The complex offers well maintained greenbelts and lush landscaping providing a tranquil atmosphere. Hot summer days have you heated? Seek out the association pool for a dip or enjoy the spa for tired muscles. Candlestick Lane is surrounded by Cypress highly regarded school district for a quality education. The city offers multiple local parks, and convenient to transportation, shopping, and entertainment. In summary, this townhouse presents an idyllic blend of modern living and suburban charm. 9066 Candlestick Lane is ready to become your next home.