




















































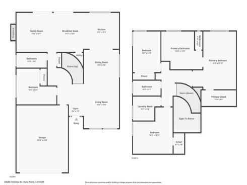
Ask about Buyer Incentives. Best Buy in town! NO HOA, LOW TAX BASE - LIGHT AND BRIGHT REMODELED Beach Close Home. This home effortlessly combines modern luxury, energy efficiency (owned solar), and exceptional craftsmanship. From the moment you arrive, the mahogany front door, soaring ceilings, hardwood flooring throughout and abundance of natural light set the tone for a warm and elegant interior. The main level showcases hardwood flooring, custom fixtures, and a flexible layout with both formal living and family room with an updated indoor gas fireplace, plus a main floor bedroom and bath—ideal for guests or multi-generational living. The chef’s kitchen is a true showstopper, featuring Shaker cabinets, Quartz countertops, Carrera marble backsplash, a Kraus farmhouse sink, dual ovens with a five-burner gas range, a built-in microwave, and an island with an eating bar—all thoughtfully designed with a view of the beautifully landscaped yard. Retreat upstairs to a luxurious primary suite complete with a freestanding soaking tub, walk-in shower with a quartz bench and porcelain pan, dual vanities, a private water closet, and a custom walk-in closet with built-in organizers. Energy-conscious buyers will appreciate the upgraded electrical panel and 29-panel solar system, designed for ample, sustainable power. Additional highlights include custom window treatments throughout, epoxy-finished garage flooring with 9 added outlets and lighting, and newer PEX plumbing and water heater. The front and rear yards offer a private oasis that includes a hot tub, fire pit, garden shed, new fencing, fruit-producing avocado trees, and portable raised vegetable beds that stay with the home. Bonus inclusions: Washer, dryer, and refrigerator are all included for your convenience. Centrally located near award-winning schools, pristine beaches, fine dining, and top-tier entertainment, this move-in-ready home is the perfect blend of style, comfort, and smart investment. Be sure to check Sea Canyon Park nearby with an abundance of open green space, large playground & picnic areas, a dog run & a lit, paved path. A must see! Photos do not do this home justice - this is a true gem of a property. Solar is currently financed and will be paid in full at closing by Seller. Saves $1200/mo in the Summer Months!