


















































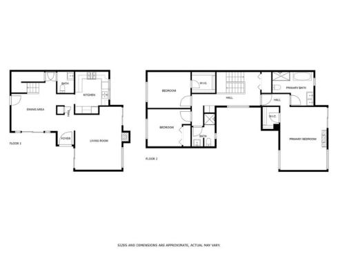
Back on the market after major improvements! The kitchen has been completely remodeled including brand new imported Italian tile, custom cabinetry, and updated plumbing. Other improvements include a brand new garage door, garage door motor, and tracks. Discover the essence of coastal living at 35248 Camino Capistrano, located in the heart of Capistrano Beach. Just moments from the sandy shores, this beautifully updated 3-bedroom, 2.5-bathroom home welcomes you in to 1,644 square feet of sunny, inviting spaces that exude a relaxed, beachy vibe. Bask in the glow of natural light highlighting the fresh interior paint and all-new flooring. The spacious master suite, equipped with automated blinds and its own fireplace, offers a private retreat, perfect for lazy mornings or cozy nights. Step onto your private balcony with ocean views to enjoy the cool ocean breezes or wander down to the sparkling community pool for a refreshing swim. Every corner of this home has been thoughtfully curated, including all new bathrooms, an updated kitchen, and modernized lighting. With a brand new water heater and recent termite treatment, you can settle in with peace of mind. Enjoy the convenience of in-unit laundry and the security of a gated community. Whether you’re playing a match on the tennis court or simply unwinding at home, this haven offers a perfect blend of beachy charm and homey comfort.