

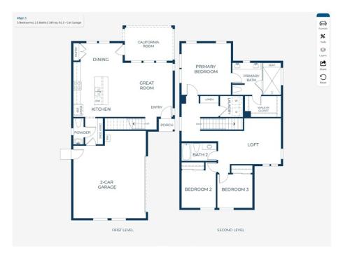
Presented by Bonanni Development, this beautifully crafted home is part of the exclusive Oakpointe community—Fountain Valley’s premier collection of 15 modern luxury single-family residences. Located at 8572 Talbert Ave, Fountain Valley, CA 92708, this address marks the entrance to this exciting development. This home features Plan 1 (Lot 3), one of four thoughtfully designed floor plans, offering 3 bedrooms, 2.5 baths, and 1,810 sq. ft. of sophisticated living space with 10-foot ceilings throughout. Designed for modern living, this home includes a versatile loft area upstairs and an inviting California room in the backyard, perfect for seamless indoor-outdoor entertaining. The primary suite serves as a private retreat, complete with a spacious en-suite bathroom and a generous walk-in closet. Two additional bedrooms provide flexibility for family, guests, or a home office. Enjoy the rare opportunity to fully customize the interiors through the developer’s partnership with Andrew Lauren Interiors, allowing you to personalize everything to reflect your style. Ideally located in prime Fountain Valley, Oakpointe offers easy access to top-rated schools, shopping, and dining, and is just minutes from Huntington Beach, blending coastal charm with everyday convenience.