714-914-4996

18044 Courreges Court,
Fountain Valley, CA 92708

$899,000

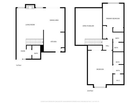
Welcome to 18044 Courreges Court, a beautifully maintained townhome in the highly desirable Shadow Lane community of Fountain Valley. This thoughtfully designed home offers a dual primary suite floor plan with two bedrooms and three bathrooms. The main living area features an open and inviting layout with newer flooring, abundant natural light, vaulted ceilings, and a cozy fireplace. The kitchen has island seating, ample cabinetry, dishwasher, built in microwave, and opens into the dining and living spaces. Upstairs, two spacious primary suites each offer their own private bathrooms and generous closet space. Additional highlights include air conditioning, shutters, new lighting fixtures, and a convenient laundry room. The private backyard patio has beautiful brick and has been recently updated with fresh landscape. The two car garage has cabinetry and direct access to the kitchen. Residents of Shadow Lane enjoy a beautifully maintained community with a sparkling pool and spa, guest parking, and peaceful surroundings. The home is ideally located adjacent to the scenic greenbelt trail and Courreges Park, offering easy access to outdoor recreation, walking paths, and open space. Situated within the highly regarded Fountain Valley school district and close to shopping, dining, and major freeways, this home combines comfort, convenience, and community in one exceptional opportunity.

Basic Information

MLS #:
PW26039456

Price:
$899,000

Price
(per sq ft):
$611.00

Address:
18044 Courreges Court ,
Fountain Valley, CA 92708

MLS Area:
16 - Fountain Valley / Northeast HB

Subdivision:
Shadow Lane (SHLN)

Property
Type:
Townhouse

Days on Market:
18

Status:
Active Under Contract

Bedrooms:
2

Bathrooms:
3

Full Baths:
2

Size (sq ft):
1,469 sq ft

Lot Size:
1,739 sq ft

Year Built:
1985

Sale Type:
Standard

Rooms in Home

Rooms:
Walk-In Closet, Laundry, All Bedrooms Up, Kitchen

Eating Area:

Laundry:
Individual Room

Entry Location:
1

Interior Features

Fireplace:
Family Room

Cooling:
Central Air

Heating:

Floor:

Appliances:
Dishwasher

Interior Features:

Security:

Accessibility:

Garage and Parking

Garage:
Attached

Garage:
2 Spaces

Carport:
0 Spaces

Parking:

Home Owners Association

HOA Dues 1:
$579.00 / Monthly

HOA Dues 2:
$

HOA Amenities: 
Pet Rules, Management, Call for Rules, Pool, Spa/Hot Tub

Utilities

Water:
Public

Utilities:

School Information

District:
Fountain Valley

Elementary:

Middle:

High:

Exterior Features

Pool:
Association

Spa:
Association

Patio:

View:
Neighborhood

Construction:

Foundation:

Roof:

Windows:

Common Walls:
2+ Common Walls

Levels:
Two

Lot Features:
Back Yard

Additional Information

County:
Orange

Senior Community:
No

Community Features:
Street Lights

Other Structures:

Structure Condition:

Direction Faces:

Listed by:
Compass , Krista Faber-Vento , 01152209

Co-Listed:

Last
Updated:
3/17/2026 11:51 PM

18044 Courreges Court,
Fountain Valley, CA 92708