









































































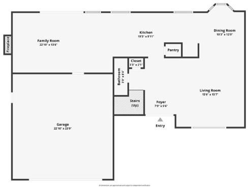
Nestled in the highly sought after Four Seasons tract, this FULLY REMODELED, two-story, four bedroom, interior tract home is located on a LARGE lot nestled on a quiet street & is serviced by Fountain Valley’s top ranked schools.The pleasant curb appeal of this colonial-style home, from the sitting area on the front porch to the 2nd story balcony that spans the length of the home, is always inviting. Entering the residence, this popular floor plan has been re-imagined for a more open concept & offers a nicely sized family room,w/a ½ bathroom,a dining area,& laminate flooring throughout the entire house. The efficient layout flows into a well-appointed kitchen w/new white shaker style cabinets, quartz countertops, stylish shelves, recessed lighting & stainless steel appliances.Open to the kitchen, there is a nice-sized living room w/a cozy fireplace, black ceiling beams,& new sliding doors to the backyard.The LARGE,PRIVATE and TRANQUIL backyard is an entertainer's delight with a large patio perfect for family gatherings and BBQ’s, plenty of room for a pool,a garden,flowers,orange trees,and a grass area for kids and pets to play,all enclosed by block walls.Back inside, off the living room, there is direct access to the 2-car garage w/washer & dryer hookups. Heading upstairs, the fully remodeled owner’s suite offers an en-suite ¾ bathroom w/a step-in shower. Three additional generously sized bedrooms share a full hallway bathroom. 2 of the bedrooms have sliding doors to the large balcony spanning the width of the house & one of the bedrooms can be turned into two bedrooms for a FIFTH bedroom option.Additional highlights include neutral paint throughout, new finishes, light & water fixtures, scraped ceilings,& central heating. Only steps away,Harper Park & playground offer a great space for walking, playing w/kids & pets, or simply enjoying the beautiful open space. This interior tract home is also close to award-winning schools, a short commute to world-class beaches, &fine dining, entertainment & shops at Main St, Pacific City, Bella Terra, Costco & Whole Foods.Also close to HB Central Park, Library & Senior Center, HB Sports Complex, the Equestrian Center, Meadowlark Golf Course, South Coast Plaza, the OC Fair Grounds,& more! Easy access to major freeways & PCH.Great homes in THIS neighborhood & THIS location typically don’t last long on the market,so please call us for a private showing today!Experience the best of California coastal living all year round!