714-914-4996

9168 El Colorado ,
Fountain Valley, CA 92708

$1,349,000

Step into a warm and welcoming home filled with natural light, where pride of ownership is immediately felt. A spacious entry opens to beautiful laminate flooring in soft gray-and-white tones, offering a fresh, farmhouse-inspired look that sets the tone upon arrival. The living room is anchored by a striking fireplace with a terrazzo-style hearth and mantle that truly pops—an inviting focal point for everyday living and gatherings. The country-style kitchen blends dining and everyday living, filled with natural light that flows throughout the space and sets a warm, welcoming tone. A striking terrazzo-style backsplash and updated counters immediately draw you in, while white painted cabinetry brightens the room. A breakfast bar enhances functionality by offering additional casual seating—perfect for quick meals, morning coffee, or a place for kids to do homework. The main dining area is accented by a beautiful ceiling feature, and the cabinet interiors are surprisingly spacious with a generous pantry, providing excellent storage and an opportunity for future customization. The thoughtfully designed first floor features a remodeled primary suite with an updated bath, spacious closet with custom organizers along with two additional downstairs bedrooms, both enhanced by custom closet organizers. A beautifully remodeled guest bathroom adds both style and convenience, thoughtfully updated to complement the home’s warm, inviting feel. Upstairs, two generous bedrooms, spacious closets, one is a walk in, both provide flexibility—ideal for children’s rooms, a playroom, home office, or bonus space. The backyard is a true highlight—oversized, private, and beautifully maintained with mature fruit trees including avocado, lemon, grapefruit, peach, apple, and orange. There is ample space for play, gardening, or simply relaxing in a peaceful outdoor setting. Additional features include scraped ceilings, replaced dual-pane windows, abundant natural light, and a desirable neighborhood location close to shopping, freeways, and top-rated schools. A well-cared-for home offering space, flexibility, and character—ready for its next chapter. Note: Back Lawn recently seeded - to not walk on it.

Basic Information

MLS #:
OC26022824

Price:
$1,349,000

Price
(per sq ft):
$757.00

Address:
9168 El Colorado ,
Fountain Valley, CA 92708

MLS Area:
16 - Fountain Valley / Northeast HB

Subdivision:
Old Farm (OLDF)

Property
Type:
Single Family Residence

Days on Market:
45

Status:
Active Under Contract

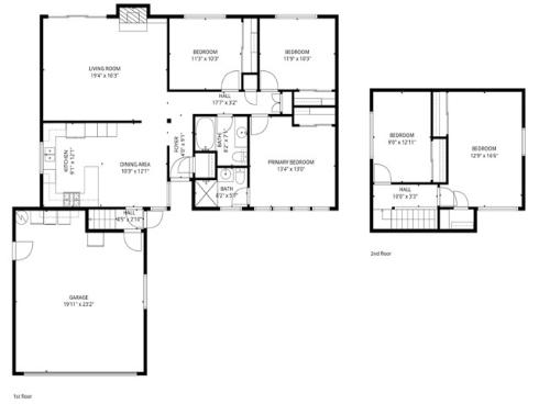
Bedrooms:
5

Bathrooms:
2

Full Baths:
1

Size (sq ft):
1,782 sq ft

Lot Size:
7,201 sq ft

Year Built:
1965

Sale Type:
Standard

Rooms in Home

Rooms:
Living Room, Main Floor Bedroom, Main Floor Primary Bedroom, Primary Bathroom

Eating Area:
Breakfast Counter / Bar, Family Kitchen

Laundry:
In Garage

Entry Location:
1

Interior Features

Fireplace:
Living Room

Cooling:
None

Heating:
Central

Floor:
Carpet, Laminate

Appliances:
Dishwasher, Disposal, Gas Oven, Gas Range

Interior Features:
Brick Walls, Built-in Features, Ceiling Fan(s), Granite Counters, Pantry

Security:

Accessibility:

Garage and Parking

Garage:
Attached

Garage:
2 Spaces

Carport:
0 Spaces

Parking:
Concrete, Garage, Garage Faces Front, Garage Door Opener

Home Owners Association

HOA Dues 1:
$0.00 /

HOA Dues 2:
$

HOA Amenities: 

Utilities

Water:
Public

Utilities:
Cable Available

School Information

District:
Huntington Beach Union High

Elementary:

Middle:

High:
FOUVAL

Exterior Features

Pool:
None

Spa:

Patio:

View:
None

Construction:

Foundation:

Roof:
Composition

Windows:
Double Pane Windows

Common Walls:
No Common Walls

Levels:
Two

Lot Features:
0-1 Unit/Acre

Additional Information

County:
Orange

Senior Community:
No

Community Features:
Curbs

Other Structures:

Structure Condition:

Direction Faces:

Listed by:
Seven Gables Real Estate , Sandi Munoz , 00854435

Co-Listed:
Seven Gables Real Estate , Yvonne Munoz , 01372675

Last
Updated:
3/17/2026 11:51 PM

9168 El Colorado ,
Fountain Valley, CA 92708