714-914-4996

1836 W Southgate ,
Fullerton, CA 92833

$998,000

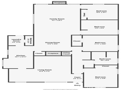
Welcome to 1836 W. Southgate Avenue in Fullerton, where space, flexibility, and opportunity come together in one exceptional single-story home. Situated on a generous 6,840 sq. ft. lot, this well-cared-for residence offers 4 bedrooms with a potential 5th bedroom option, 1.5 bathrooms, and 1,773 sq. ft. of thoughtfully designed living space. From the moment you arrive, the inviting curb appeal and welcoming front porch set the tone. Inside, you’ll immediately notice the pride of ownership and the comfortable flow of the home. The spacious living room and separate family room provide multiple areas to gather, relax, or entertain, giving everyone room to spread out while still feeling connected. Important upgrades have already been completed, including updated windows, HVAC, and roof, offering both comfort and peace of mind for years to come. Inside laundry adds everyday convenience, and the single-level layout enhances ease of living. The true standout feature is the oversized detached 4-car garage with approximately 1000 sq.ft, a rare find with endless possibilities. Envision a workshop, hobby space, creative studio, additional storage, or explore potential ADU opportunities with city approval. The extended driveway offers abundant parking and RV potential, making this property as functional as it is versatile. The backyard provides plenty of room to entertain, garden, or design your own outdoor retreat. Whether hosting gatherings or simply enjoying a quiet evening outdoors, this space adapts to your lifestyle. Located in a well-established neighborhood with sidewalks and mature surroundings, this home offers both charm and opportunity. Move in and enjoy it as it is, or bring your vision and make it your own. Homes with this kind of flexibility and garage space are hard to find. Come see what makes this one special.

Basic Information

MLS #:
PW26040367

Price:
$998,000

Price
(per sq ft):
$562.00

Address:
1836 W Southgate ,
Fullerton, CA 92833

MLS Area:
83 - Fullerton

Subdivision:

Property
Type:
Single Family Residence

Days on Market:
19

Status:
Active Under Contract

Bedrooms:
5

Bathrooms:
2

Full Baths:
2

Size (sq ft):
1,773 sq ft

Lot Size:
6,840 sq ft

Year Built:
1954

Sale Type:
Trust,Standard

Rooms in Home

Rooms:
Primary Bedroom, Separate Family Room, Laundry, All Bedrooms Down, Main Floor Primary Bedroom, Main Floor Bedroom

Eating Area:
Dining Room, Breakfast Nook

Laundry:
Gas Dryer Hookup, Individual Room

Entry Location:
livingroom

Interior Features

Fireplace:
Living Room, Family Room

Cooling:
Central Air

Heating:
Central

Floor:
Vinyl, Carpet, Wood

Appliances:
Gas Range

Interior Features:
Block Walls, Ceiling Fan(s)

Security:

Accessibility:
None

Garage and Parking

Garage:
Detached

Garage:
4 Spaces

Carport:
0 Spaces

Parking:
Garage, Concrete, Garage - Single Door, Driveway Level, Garage Faces Front, Garage Door Opener, RV Potential

Home Owners Association

HOA Dues 1:
$0.00 /

HOA Dues 2:
$

HOA Amenities: 

Utilities

Water:
Public

Utilities:
Natural Gas Connected,Sewer Connected,Electricity Connected,Water Connected

School Information

District:
Fairfield-Suisun School District

Elementary:
PACIFI2

Middle:
NICOLA

High:
BUEPAR

Exterior Features

Pool:
None

Spa:
None

Patio:
Slab

View:
Neighborhood

Construction:
Stucco

Foundation:
Raised, Slab

Roof:
Composition

Windows:
Blinds

Common Walls:
No Common Walls

Levels:
One

Lot Features:
Sprinklers In Front, Front Yard, Yard

Additional Information

County:
Orange

Senior Community:
No

Community Features:
Curbs, Sidewalks

Other Structures:
Workshop, Storage

Structure Condition:
Turnkey

Direction Faces:
North

Listed by:
RE/MAX New Dimension , Priscilla Rael-Albin , 01437691

Co-Listed:
RE/MAX New Dimension , Craig Albin , 01486993

Last
Updated:
3/17/2026 7:10 PM

1836 W Southgate ,
Fullerton, CA 92833