714-914-4996

2291 Ardemore ,
Fullerton, CA 92833

$1,698,000

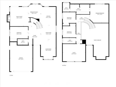
Significantly remodeled two-story residence in the highly sought-after Coyote Hills “The Estates” community of Fullerton. Originally built in 1981 and extensively updated with substantial high-end upgrades in 2021, the home offers an open, spacious, and well-designed floor plan featuring four bedrooms, a large bonus room, and three full bathrooms. A striking double-door entry opens to an impressive foyer and sweeping staircase, leading to formal living and dining spaces. The kitchen is appointed with custom cabinetry and stainless steel appliances and connects seamlessly to the living and family room with fireplace. The interior showcases modern finishes throughout, including updated flooring and thoughtfully redesigned living spaces. The layout also includes a highly desirable main-floor bedroom and full bath. Upstairs, the primary suite features dual vanities and a soaking tub. Residents of The Estates enjoy resort-style amenities including pools, spa, tennis and sport courts, clubhouse, playgrounds, and scenic walking trails. The home is also conveniently located near Robert E. Ward Nature Preserve, Laguna Lake Park, and the Fullerton Loop hiking and biking trails. Located within the highly acclaimed Fullerton School District and zoned for Laguna Road Elementary, with convenient access to parks, shopping, dining, and golf.

Basic Information

MLS #:
RS26039048

Price:
$1,698,000

Price
(per sq ft):
$622.00

Address:
2291 Ardemore ,
Fullerton, CA 92833

MLS Area:
83 - Fullerton

Subdivision:
Other (OTHR)

Property
Type:
Single Family Residence

Days on Market:
12

Status:
Active

Bedrooms:
4

Bathrooms:
3

Full Baths:
3

Size (sq ft):
2,728 sq ft

Lot Size:
8,030 sq ft

Year Built:
1981

Sale Type:
Standard

Rooms in Home

Rooms:
Bonus Room, Living Room, Main Floor Bedroom, Family Room, Primary Suite

Eating Area:

Laundry:
In Garage

Entry Location:
Front

Interior Features

Fireplace:
Family Room

Cooling:
Electric, Central Air

Heating:
Electric, Central

Floor:
Wood

Appliances:
Gas Cooktop, Water Heater, Disposal, Refrigerator, Gas Range, Double Oven, Freezer, Gas Oven, Dishwasher

Interior Features:
Bar, Quartz Counters, High Ceilings, Pantry, Recessed Lighting, Open Floorplan, Cathedral Ceiling(s)

Security:
Carbon Monoxide Detector(s), Smoke Detector(s)

Accessibility:

Garage and Parking

Garage:
Attached

Garage:
2 Spaces

Carport:
0 Spaces

Parking:
Direct Garage Access, Garage - Single Door, Built-In Storage, Side by Side

Home Owners Association

HOA Dues 1:
$135.00 / Monthly

HOA Dues 2:
$

HOA Amenities: 
Sport Court, Pickleball, Playground, Tennis Court(s), Pool, Clubhouse, Spa/Hot Tub, Picnic Area

Utilities

Water:
Public

Utilities:

School Information

District:
Fullerton Joint Union High

Elementary:
LAGROA

Middle:
PARKS

High:
SONORA

Exterior Features

Pool:
Association, Community

Spa:

Patio:

View:
Trees/Woods

Construction:
Frame, Concrete, Stucco, Drywall Walls

Foundation:

Roof:
Tile

Windows:

Common Walls:
No Common Walls

Levels:
Two

Lot Features:
Front Yard, Back Yard

Additional Information

County:
Orange

Senior Community:
No

Community Features:
Street Lights, Sidewalks, Suburban

Other Structures:

Structure Condition:
Turnkey, Updated/Remodeled

Direction Faces:

Listed by:
Equity Source , William Oh , 01371219

Co-Listed:

Last
Updated:
3/17/2026 7:10 PM

2291 Ardemore ,
Fullerton, CA 92833