











































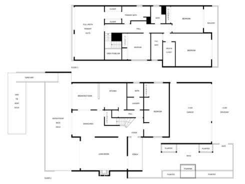
Mid-Century Waterfront Home on Davenport Island with wide Channel View… front row for the boat parade! The Home was remodeled in the early 1990s: Kitchen with granite Counters, New Baths, New Plumbing & Electrical. The lot has 50 feet of frontage with side-tie boat dock… There is room on the dock for up to a 48 foot yacht + duffy boat or skiff + kayaks & paddleboards. Davenport Island has many family-friendly features including: Neighborhood park with playground, sport court, and nice big greenbelt… and a fantastic & safe beach just before the bridge. This is a fantastic floorplan in a highly desirable location... perfect to use as it is or remodel to your liking. Take a look at the floorplan drawing in photos and the 3D tour for more details.