









































































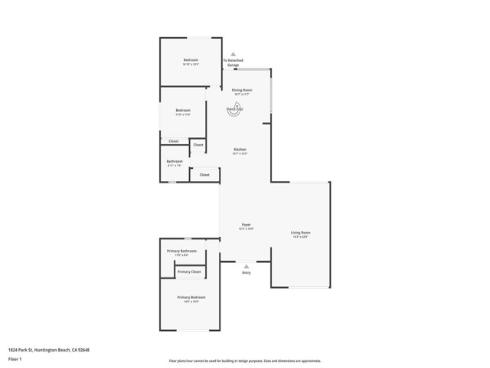
Welcome to 1824 Park St,a nicely remodeled mid-century modern home on a quiet street just off Main St.If you’re looking for Palm Springs meets the beach,you just found it!Nestled in a desirable pocket of Huntington Beach’s Lake Park neighborhood,this home offers a serene feel & local vibes,while keeping you close to the city’s best amenities & traditions like the 4th of July parade & fireworks,just not in your backyard!Curb appeal starts w/stacked stone accents & a manicured front yard w/grass & paver walkways,creating a welcoming entry.Approximately 1 mile from world famous white sand beaches of “Surf City,”this refreshed home offers 5 bedrooms (3 down, 2 up),2 baths & a 2-car detached garage.Entering,you’re greeted by an open floor plan with new laminate flooring,recessed lighting,a dramatic suspended fireplace & clear sightlines to the kitchen,dining area & natural light throughout.The efficient layout flows into a kitchen overlooking the family room,w/ granite counters,flat panel cabinets & stainless appliances including a 4-burner gas cooktop.For formal entertaining,there’s a dining area off the kitchen,perfect for special events & holiday gatherings.A full bath off the living area & multiple sliders lead to the private front patio & backyard.Outside you’ll find tropical landscaping,grass for kids & pets,large patio & walkways w/ pavers,plus a built-in BBQ w/ granite counter space,stacked stone facade,sink & beverage fridge,making this an ideal space for outdoor cooking,dining & year-round entertaining.A water feature adds to the tranquility.Back inside,there are 3 bedrooms on the first level,all w/ sliders to private spaces.2 share a full hallway bath,while the owner’s suite enjoys an upgraded bath w/ step-in shower.Upstairs are 2 generously sized bedrooms,perfect for older kids,office or guests.Other highlights include new flooring,paint,baseboards,scraped ceilings,recessed lights,landscaped yards w/ sprinklers,central heat,washer/dryer hookups.Only steps away,Worthy Park offers space to walk,play w/ kids & pets,or just enjoy the open air.Close to top schools including Dwyer Middle & Huntington Beach High,plus world-class beaches,dining, entertainment & shops at Main St & Pacific City.Also nearby are South Coast Plaza,Costco,HB Central Park,Library & Senior Center,HB Sports Complex,Equestrian Center,Mile Square Park & Golf Course,OC Fairgrounds & more.Easy access to freeways & PCH.With many recent improvements,enjoy California living at its finest!