



























































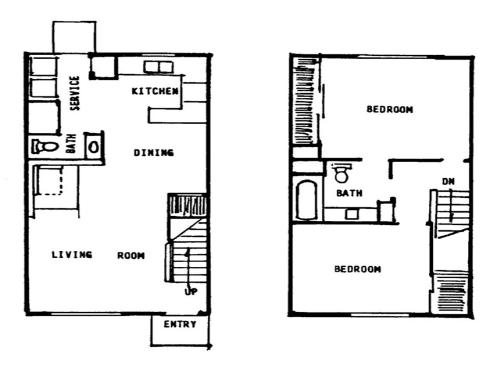
Beach-resort living meets modern comfort in this beautifully updated 2-story townhome nestled in the highly sought-after area in south Huntington Beach. As you enter, you'll feel at home with the warm, inviting floor plan featuring wide-plank luxury vinyl plank flooring, recessed lighting, and a charming painted brick fireplace that adds character to the spacious living room. The dining area flows seamlessly into a tastefully remodeled kitchen, where you'll find granite countertops, crisp white shaker cabinets, and stainless steel appliances. The wall between kitchen and hall to laundry was removed to open up the space which has increased the kitchen space. A sliding barn door conceals the laundry area, and there's a convenient large storage nook tucked beneath the stairs—perfect for keeping things neat and organized. A remodeled powder room, with vanity and cabinet. The private enclosed patio complete the main level, ideal for entertaining and relaxing outdoors. Upstairs, you’ll find two generously sized bedrooms with plush carpeting, in the primary bedroom you’ll find 2 closets with mirrored doors, and plenty of natural light. The full bathroom has been thoughtfully upgraded with a granite countertop vanity, modern lighting, and a designer glass shower door with tub enclosure and ample shelving. Residents of this community enjoy access to resort-style amenities including a large greenbelts, sparkling pool and spa, shaded playground, outdoor fitness equipment, picnic areas, and a basketball court. The home includes two assigned parking spaces—one covered with overhead storage cabinets and one permit parking pass for guests or a second vehicle. Ideally located just minutes from the sand, parks, restaurants, and schools. This townhome offers the perfect blend of beach-close lifestyle, modern upgrades, and a community-focused environment.