




















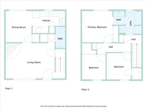
Experience the best of coastal living in this charming Huntington Beach home at 19880 Berkshire Lane. This beautifully maintained 3-bedroom, 1.5-bath residence offers a warm and inviting atmosphere, with living, dining, and kitchen areas thoughtfully connected for easy flow and comfort. The updated kitchen shines with granite countertops, stainless steel appliances, and a convenient in-unit washer and dryer. Relax in the cozy living room featuring a fireplace, perfect for unwinding or entertaining guests. Step outside to your private backyard patio with direct access from the unit, ideal for enjoying indoor-outdoor living. The home includes one designated covered parking space and is currently tenant-occupied, presenting a fantastic opportunity for investors or those planning to secure a future residence or getaway in a vibrant beach town. Residents enjoy resort-style amenities such as two sparkling pools, a clubhouse, a basketball court, and community security patrol in The Continentals. All this, just minutes from world-class beaches, top-rated schools, and within easy walking or biking distance to shops, restaurants, gyms, and everything Huntington Beach has to offer. **Seller may carry**