






























































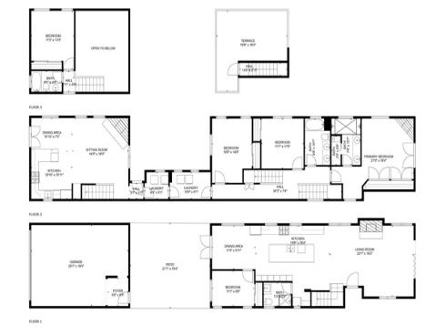
Live Auction! Bidding to start from $2,300,000! Traditional non-distressed property. Cash or finance ok! Seller will entertain offers prior to the Auction date. Magnificent beach-close Nantucket-Style home PLUS a separate two-story apartment—offering over 3,000 square feet of completely reimagined living space. A rare opportunity for homeowners & investors alike! This show-stopping residence is like a brand new home boasting modern luxury finishes, sophisticated architectural details, and exquisite craftsmanship throughout. The main house features 4 bedrooms and 3 bathrooms—including a convenient downstairs bedroom and bathroom—while the private apartment offers 1 bedroom, 1 bathroom, a full kitchen, living room with fireplace, dining area, laundry room, and its own balcony, ideal for rental income or extended family guest quarters. Not one inch of this house has gone untouched with the finest materials and spectacular woodwork. The entire residence boasts beautiful hardwood floors throughout all levels, new windows, Central A/C, extensive wainscoting, crown molding, white shiplap volume ceilings, recessed LED lighting, and beautiful tile work and marble graces all 4 bathrooms creating a refined coastal ambiance. French doors and bi-fold doors seamlessly connect indoor and outdoor living, where you'll find a front brick patio with built-in seating and elevated fire pit, and a spacious back patio perfect for major entertaining. The open-concept layout includes an elegant formal living room with fireplace, multiple dining areas, and a built-in quartz wine bar with wine fridge. The main kitchen is a chef’s dream, featuring an oversized island, quartz countertops, porcelain farmhouse sink, an abundance of solid wood white shaker cabinetry with chic gold hardware, and an Italian 8-burner ILVE range with double ovens, shinny gold accents, and a matching pot-filler. The apartment kitchen is equally elegant with its own ILVE range and custom cabinetry. The luxurious primary suite showcases a cathedral ceiling, brick fireplace, and private balcony, while the third-floor rooftop deck offers sunset views and full entertainment hookups. Two upstairs laundry areas allow complete separation between the main house and the apartment. An epoxy-finished 2-car garage completes this impeccable home. This house is ready for the most discriminating buyer with a desire for a timeless beach house blocks from the beach and vibrant Main Street. All or any furniture can be included!