714-914-4996

21135 Freeport ,
Huntington Beach, CA 92646

$799,000

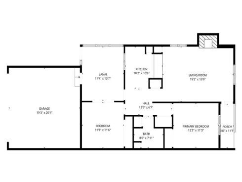
21135 Freeport Lane is a 2-bedroom, single-level end-unit residence with an attached two-car garage and a permitted enclosed lanai adding approximately 120 square feet, bringing the total living space to about 1,044 square feet. Ideally located in Huntington Beach just minutes from the ocean, the home offers a functional floor plan and an excellent opportunity for a buyer to add cosmetic updates while enjoying a beach-close lifestyle. The living room is centered around a classic brick fireplace and flows naturally into the dining area and kitchen, creating a comfortable space for everyday living and entertaining. Large windows throughout the home provide abundant natural light. Several key systems have already been updated, including a furnace (approximately 3 years old), tankless water heater, newer garage door, washer and dryer, and flooring installed about six years ago, providing a solid foundation for the next owner to personalize the interior finishes. Residents of Surfside Homes by the Sea enjoy amenities including two pools, two remodeled clubhouses, playground areas, a basketball court, walking trails, and BBQ and picnic areas, all complemented by refreshing coastal breezes. The neighborhood is also known for its views of the Huntington Beach Air Show and Fourth of July fireworks. Conveniently located near Beach Promenade Shopping Center, with restaurants, shops, and everyday services, and just a short distance from the Huntington Beach Pier, Main Street, and the beach, this home represents a great opportunity to own in one of Huntington Beach’s desirable beach-close communities.

Basic Information

MLS #:
NP26049049

Price:
$799,000

Price
(per sq ft):
$864.00

Address:
21135 Freeport ,
Huntington Beach, CA 92646

MLS Area:
14 - South Huntington Beach

Subdivision:
Surfside (SURF)

Property
Type:
Single Family Residence

Days on Market:
7

Status:
Active

Bedrooms:
2

Bathrooms:
1

Full Baths:
1

Size (sq ft):
924 sq ft

Lot Size:
1,980 sq ft

Year Built:
1964

Sale Type:
Standard

Rooms in Home

Rooms:
Kitchen, Living Room

Eating Area:
Breakfast Counter / Bar

Laundry:
In Garage, Washer Included, Dryer Included

Entry Location:
1

Interior Features

Fireplace:
Living Room

Cooling:
Central Air

Heating:
Central

Floor:
Tile, Laminate

Appliances:
Range Hood, Electric Range, Electric Oven, Dishwasher

Interior Features:

Security:

Accessibility:

Garage and Parking

Garage:
Attached

Garage:
2 Spaces

Carport:
0 Spaces

Parking:
Direct Garage Access

Home Owners Association

HOA Dues 1:
$399.00 / Monthly

HOA Dues 2:
$

HOA Amenities: 
Playground, Pool, Clubhouse

Utilities

Water:
Public

Utilities:
Natural Gas Connected,Phone Available,Sewer Connected,Cable Available,Electricity Connected,Water Connected

School Information

District:
Huntington Beach Union High

Elementary:

Middle:

High:

Exterior Features

Pool:
Community

Spa:

Patio:

View:
None

Construction:

Foundation:

Roof:

Windows:

Common Walls:
1 Common Wall

Levels:
One

Lot Features:
0-1 Unit/Acre

Additional Information

County:
Orange

Senior Community:
No

Community Features:
Curbs, Street Lights, Sidewalks

Other Structures:

Structure Condition:

Direction Faces:

Listed by:
Pacific Sotheby's Int'l Realty , Luke Serven , 02233706

Co-Listed:
Pacific Sotheby's Int'l Realty , Jon Flagg , 01316048

Last
Updated:
3/17/2026 5:17 PM

21135 Freeport ,
Huntington Beach, CA 92646