






































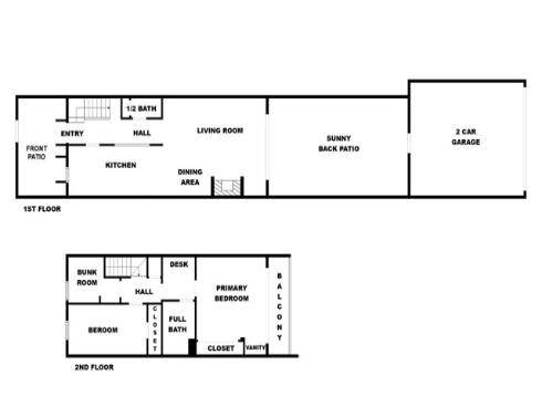
Wake up in the morning to a cup of coffee, sunshine, blue skies, and Ocean & Catalina Views from the master balcony of this “Weatherly Bay” townhouse in Huntington Harbour! There are so many recreation opportunities… This unique development is a short stroll to the beach, Bolsa Chica Nature Preserve, Huntington Harbour Yacht Club, Sea Legs, and many other restaurants & shops in the Sunset Beach area. And, the development includes pool, spa, tennis courts, and boat docks (for rent from other homeowners). So, go for a surf, sunbath, take a bike ride, paddle board the harbour, go boating/fishing, or stroll the wetlands or to one of the many casual restaurants just a few blocks away! This 2 Bedroom + Office unit is very desirable because it is low density… only two stories. The detached 2 car garage (with new cabinets and slat organizer walls) has access into a private, spacious, & relaxing patio… and direct entry from the patio into the back door. So, no carrying groceries up the stairs, Yea! The kitchen has bright white cabinets, granite counters, and NEW Stainless Appliances including Refrigerator, Oven, Washer/Dryer! Come take a look at this one if you are the type of person who enjoys an active "beach close" lifestyle. Yes, we have a Walk-Thru 3D Tour, please look for the link/icon on whatever system you are using to view the listing.