








































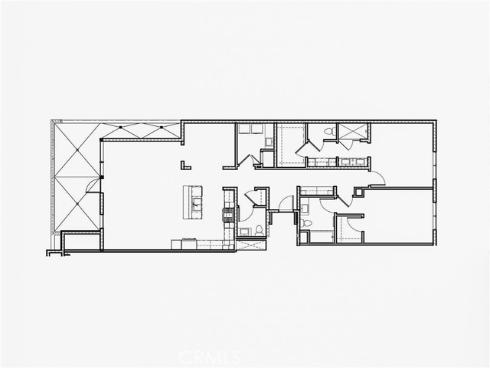
Introducing a landmark in Downtown Huntington Beach's skyline, the premier new construction development of the area. This resort-style haven offers a lifestyle of luxury and convenience, boasting amenities tailored for the discerning resident. Step into a world of modern living, where expansive windows fill the space with natural light and frame stunning views of Main Street, the iconic pier, and the sweeping San Bernardino Mountains and Saddleback range. This exceptional building offers thoughtful, exclusive amenities—including private electric car charging stations—bringing eco-friendly convenience to every resident. Designed for the active beachgoer, this property provides private surfboard and beach storage lockers, along with bike storage for exploring the vibrant neighborhood. Experience the epitome of outdoor living at the 4th level rooftop terrace, complete with multiple BBQs and fire pits, perfect for entertaining against a backdrop of the Main Street Promenade and ocean vistas. Inside, discover unparalleled sophistication with Bertazzoni appliances, quartz countertops, and counter-to-ceiling backsplash in the primary bathrooms, accentuated by vanity sconces for added elegance. Enjoy the airy ambiance created by close-to-10' ceilings as you relax in either of the ensuite bedrooms, with each primary bath featuring a frameless glass shower and a generously sized walk-in closet. Additional highlights include a guest powder room for added convenience, a spacious indoor laundry room for effortless chores, and a separate bonus room adjacent to the expansive open great room, providing versatility for your lifestyle needs. Indulge in Southern California living at its finest with a large private deck offering sun-drenched exposure, perfect for basking in the coastal breeze or hosting intimate gatherings. Don't miss your chance to experience luxury living at the heart of Huntington Beach's vibrant community.