



































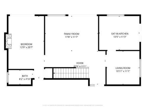
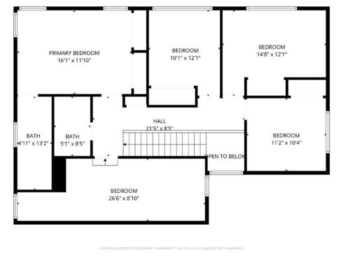
Discover your next South Huntington Beach gem! Nestled on a spacious corner lot in one of the area’s most desirable interior locations, this expansive home offers the perfect blend of comfort, potential, and lifestyle. Boasting a three-car garage and the flexibility to create up to six bedrooms, this home is ideal for a growing family or an investor looking to customize and elevate its already impressive footprint. Inside, you’ll find bright, open living spaces, and tasteful updates that complement the home’s timeless charm. Multiple living areas provide ample room for entertaining, relaxation, or even multi-generational living. The primary suite offers generous space and privacy, while the additional bedrooms are well-sized and adaptable for home offices, playrooms, or guests. Outdoors, enjoy a lushly landscaped yard and a beautifully designed patio, perfect for entertaining friends and family or simply soaking in the breeze. The property’s prime location across from Sowers Middle School, with easy walking access to top-rated schools, and local parks, makes it a true family-friendly haven. And when it’s time to unwind, you’re just a short bike ride from the beach, downtown Huntington Beach, and Pacific City — offering endless dining, shopping, and entertainment options. Whether you’re ready to move right in or excited to reimagine and modernize, this home represents an incredible opportunity to create your own South Huntington Beach masterpiece. With its unbeatable combination of Location, Luxury, and Lifestyle, this is your perfect L3!