
















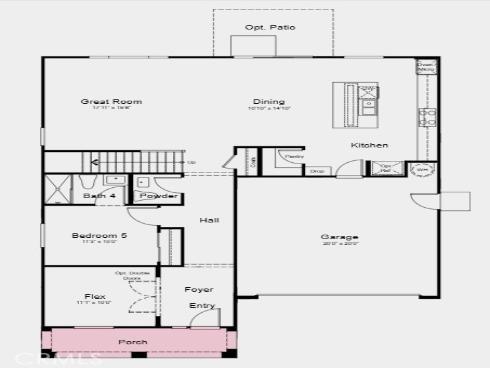
New Construction – Ready Now! Built by America's Most Trusted Homebuilder. Welcome to the Plan 3 at 106 Pansy in Lily at Great Park! From the moment you arrive at the covered porch, you’re welcomed into a home designed for comfort and connection. The great room flows beautifully into the dining area and a thoughtfully designed kitchen, complete with a cozy island and walk-in pantry—everything you need is right at your fingertips. Downstairs, a private guest bathroom and a versatile bedroom offer the perfect retreat for visitors or extended family. A flexible bonus room on the first floor is ideal for a home office, gym, or creative space. Upstairs, the primary suite is a true sanctuary with a large walk-in closet, dual vanities, a soaking tub, and a spacious shower. Just down the hall, you’ll find three more bedrooms, a full bath, a loft, and a convenient laundry room. Live in the heart of it all in a vibrant, amenity-rich community served by the highly acclaimed Irvine Unified School District. Shop, dine, and explore Irvine’s favorite local spots, then unwind with access to 17 pools, 9 parks, a cozy coffee shop, and miles of scenic walking and biking trails. Enjoy live music, art events, and seasonal celebrations at the nearby Great Park Amphitheater. And with Orange County’s stunning beaches just a short drive away, sunny escapes are always within reach. Coming in early 2027, The Canopy will introduce 11 acres of dining, shopping, and gathering spaces to the center of the Great Park master plan. Photos are for representative purposes only. MLS#IG25271562