714-914-4996

108 Palisades ,
Irvine, CA 92618

$1,618,000

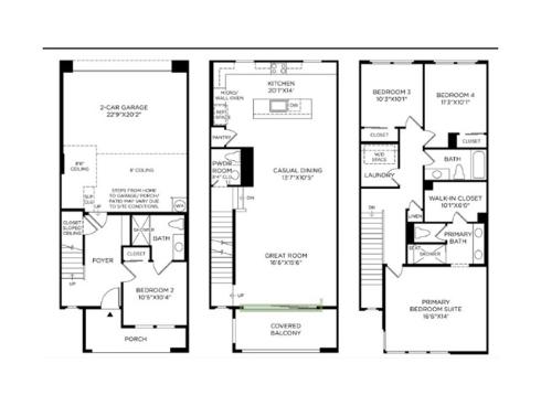
Welcome to the Elm Collection, a new community located in Great Park, which is close to Great Park Ice and the Great Park Sports. Homesite 64 is a new construction home that is situated in an interior location within the community. The Sorrel floorplan features 4 bedrooms, with 3.5 bathrooms, and is 2132 sq. ft, with a 2-car garage. Upon entering the home, you are welcomed by an expansive foyer and secondary bedroom with a full bath on the first level. On the second level, you will see a chef inspired kitchen complete with generous counterspace, ample cabinetry, and a pantry with an open floor plan. Sliding doors on the second level open to a large, covered balcony. The third level offers a spacious primary suite with a luxurious ensuite bath and walk in closet and dual vanities. There are two additional well sized bedrooms, a full secondary bath, and a dedicated laundry room. Located in a desirable community close to shopping, dining, and the 5 freeway. Homesite 64 is under construction and has an estimated completion of Fall 2026. Photos provided are of the renderings for the Sorrel floor plan.

Basic Information

MLS #:
OC26041958

Price:
$1,618,000

Price
(per sq ft):
$758.00

Address:
108 Palisades ,
Irvine, CA 92618

MLS Area:
GP - Great Park

Subdivision:
Other (OTHR)

Property
Type:
Condominium

Days on Market:
20

Status:
Active

Bedrooms:
4

Bathrooms:
4

Full Baths:
3

Size (sq ft):
2,132 sq ft

Lot Size:
sq ft

Year Built:
2026

Sale Type:
Standard

Rooms in Home

Rooms:
Walk-In Closet, Laundry, Foyer, Kitchen, Great Room, Main Floor Bedroom, Primary Suite

Eating Area:

Laundry:
Inside, Individual Room, Gas & Electric Dryer Hookup, Upper Level

Entry Location:
1st floor

Interior Features

Fireplace:
None

Cooling:
Gas, Electric, Central Air, Heat Pump, Zoned, ENERGY STAR Qualified Equipment

Heating:
Electric, Solar, Heat Pump, ENERGY STAR Qualified Equipment

Floor:
See Remarks

Appliances:
Double Oven, Electric Water Heater, Free-Standing Range, Convection Oven, ENERGY STAR Qualified Appliances, Range Hood, Gas Range, Disposal, 6 Burner Stove, Dishwasher, Microwave

Interior Features:
Wired for Data, Quartz Counters, Unfurnished, Living Room Balcony, Pantry, Recessed Lighting, Open Floorplan

Security:
Fire and Smoke Detection System, Smoke Detector(s)

Accessibility:
None

Garage and Parking

Garage:
Attached

Garage:
2 Spaces

Carport:
0 Spaces

Parking:
Garage, On Site, Direct Garage Access, Garage Door Opener

Home Owners Association

HOA Dues 1:
$560.00 / Monthly

HOA Dues 2:
$

HOA Amenities: 
Sport Court, Pets Permitted, Pet Rules, Pickleball, Playground, Tennis Court(s), Meeting Room, Fire Pit, Pool, Dog Park, Clubhouse, Barbecue, Outdoor Cooking Area, Paddle Tennis, Recreation Room, Spa/Hot Tub, Maintenance Grounds, Picnic Area, Biking Trails

Utilities

Water:
Public

Utilities:
Sewer Connected,Electricity Connected,Underground Utilities,Natural Gas Not Available,Water Connected

School Information

District:
Irvine Unified

Elementary:

Middle:

High:
PORTO

Exterior Features

Pool:
Association, Community, See Remarks

Spa:
Association, Community, See Remarks

Patio:
Covered, Patio

View:
None

Construction:
Frame, Stone Veneer, Stucco, Drywall Walls

Foundation:
Slab

Roof:
Concrete, Flat Tile

Windows:
Double Pane Windows, Screens

Common Walls:
2+ Common Walls, No One Below, No One Above

Levels:
Three Or More

Lot Features:
No Landscaping

Additional Information

County:
Orange

Senior Community:
No

Community Features:
Biking, Dog Park, Street Lights, Storm Drains, Preserve/Public Land, Sidewalks, Park

Other Structures:

Structure Condition:
Under Construction

Direction Faces:

Listed by:
Toll Brothers Real Estate, Inc , Jennifer Robertson , 01433352

Co-Listed:

Last
Updated:
3/17/2026 11:52 PM

108 Palisades ,
Irvine, CA 92618