








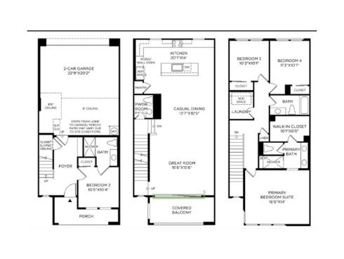
Welcome to the Elm Collection, a new community located in Great Park, which is close to Great Park Ice and the Great Park Sports. Homesite 57 is a new construction home that is situated in an interior location within the community. The Sorrel floorplan features 4 bedrooms, with 3.5 bathrooms, and is 2,132 sq. ft, with a 2-car garage. Upon entering the home, you are welcomed by an expansive foyer and secondary bedroom with a full bath on the first level. On the second level, you will see a chef inspired kitchen complete with generous counterspace, ample cabinetry, and a pantry with an open floor plan. Sliding doors on the second level open to a large, covered balcony. The third level offers a spacious primary suite with a luxurious ensuite bath and walk in closet and dual vanities. There are two additional well sized bedrooms, a full secondary bath, and a dedicated laundry room. Located in a desirable community close to shopping, dining, and the 5 freeway. Homesite 57 is under construction and has an estimated completion of Fall 2026. Photos provided are of the renderings for the Sorrel floor plan.