



























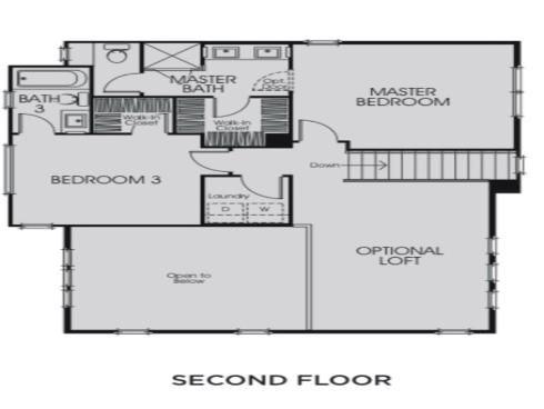
Welcome to this beautifully maintained detached condo in one of Irvine’s most sought-after communities. With 3 spacious ensuite bedrooms and 3.5 bathrooms, this thoughtfully designed home offers both privacy and functionality for modern living. Each bedroom features its own private bathroom, including a highly desirable downstairs suite—ideal for visiting guests or multi-generational living. Step into a light-filled living space with soaring high ceilings in the great room, creating an airy and inviting atmosphere. The open-concept layout flows seamlessly into the upgraded kitchen, and every inch of the home has been enhanced with designer finishes. Notable upgrades include: Real wood plantation shutters throughout Ceiling fans for added comfort Engineer wood flooring on the main level Upgraded carpet upstairs Elegant ceramic tile flooring in all bathrooms Custom designer paint throughout the home Upstairs, a spacious loft area offers flexibility as a home office, reading nook, or kids' playroom. Though the home isn't oversized, it boasts a highly efficient floor plan with full functionality and flow. This standalone condo shares no common walls, offering rare privacy and a quiet living environment. Lovingly cared for by the original owner and now on the market for the first time, the home shows pride of ownership in every detail. Enjoy resort-style living with access to 12 established parks and two newly completed parks. Three min walking distance to tennis court, basketball court, 2 swimming pools , sand volleyball court, mini golf court and two parks with swimming pools, BBQ areas, and playgrounds. Ideally located near shopping, dining, and part of the highly acclaimed Irvine Unified School District, with the neighborhood elementary school just a short walk away. This home is the perfect blend of comfort, style, and community living in a prime Irvine location. Don’t miss this rare opportunity!