




































































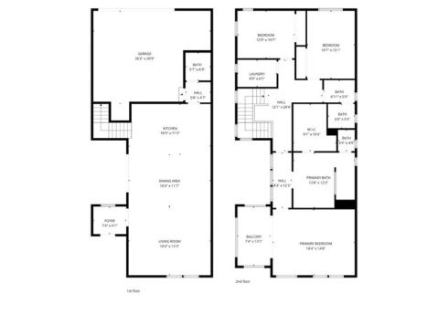
HIGHLY MOTIVATED SELLERS. BRING ALL OFFERS. Beautiful home in Solis Park in Great Park Neighborhoods. Walking distance to K-12 IUSD award winning schools SOLIS PARK K-8 AND PORTOLA HIGH SCHOOL. This bright, two-story Adagio II Residence 1 offers 3 bedrooms, 2.5 bathrooms, and a 2-car garage, with an open foyer flowing into the family and dining rooms and a gourmet kitchen at the rear anchored by a large center island—ideal for entertaining and everyday living. Luxury vinyl plank flooring spans the main level and upstairs common areas for a cohesive, low-maintenance finish; upstairs features two secondary bedrooms, a full bath with dual vanities, and a convenient laundry room. The private owner’s suite sits opposite the landing and includes a covered deck and a spa-inspired bath with a freestanding tub, walk-in shower, dual vanities, and a walk-in closet with a shoe rack. Thoughtfully landscaped front and side patios with modern tile and turf make outdoor living effortless in Southern California, and residents enjoy Great Park Neighborhoods amenities such as pools, playgrounds, BBQ areas, and clubhouses—this home is move-in ready.