



























































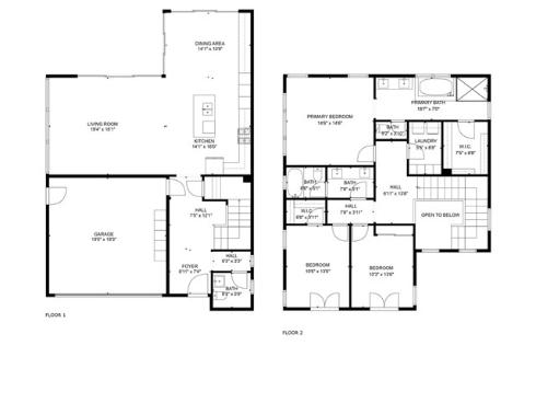
CITYLIGHT AND HILLSIDE VIEW HOME! Experience unparalleled luxury in The Reserve at Orchard Hills, an exclusive 24-hour guard-gated community. This exquisite 2,205 sq ft residence boasts 3 bedrooms, 2.5 bathrooms, and breathtaking panoramic views of rolling hills and city lights. Upon entry, a stunning two-story foyer welcomes you with grandeur. The highly upgraded interior showcases a gourmet kitchen with elegant custom cabinetry, seamlessly flowing into a spacious great room with expansive stacking sliders that flood the space with natural light and fresh air. The dining area, enclosed by stacking sliding doors, offers an intimate ambiance with serene green views. The home features pragmatic tile flooring downstairs and engineered wood flooring throughout the stairs and all upstairs bedrooms. The main bedroom enjoys sweeping views that stretch from Irvine to Newport Beach and Catalina Island on clear, sunny days. Offering ultimate privacy and rare, unobstructed vistas, this home stands out in the Irvine market. Outdoor living is elevated with a sophisticated built-in BBQ, perfect for entertaining. Residents enjoy private, resort-style amenities including a pool, spa, community park, and clubhouse. With close proximity to scenic trails, premier shopping and dining, major freeways, and the award-winning Northwood High School, this impeccably maintained home offers a lifestyle of elegance, comfort, and convenience.