714-914-4996

205 Briar Moon ,
Irvine, CA 92618

$2,664,255

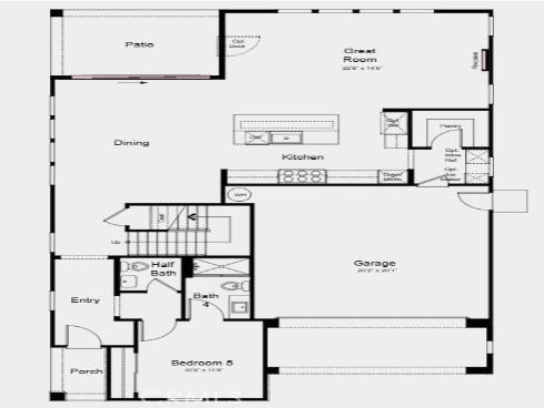
What's Special: No Rear Neighbors | Close to Park | Covered Patio | Loft | Fireplace. New Construction – March Completion! Built by America's Most Trusted Homebuilder. Welcome to the Plan 3 at 205 Briar Moon in Aurora at Luna Park! Function and flow meet effortless style! Step inside to find a private bedroom with en-suite bath and a convenient powder room near the entry. The heart of the home opens to a spacious great room, bright kitchen with island, and dining area that extends to a charming patio—perfect for hosting or unwinding. Upstairs, three bedrooms, two bathrooms, and a cozy loft await, along with the serene primary suite featuring a spa-inspired bath with dual vanities, soaking tub, walk-in shower, and generous closet. Aurora at Luna Park offers a lifestyle of connection within Great Park Neighborhoods, with 9 parks, 17 pools, scenic trails, and The Canopy coming in 2027—an 11-acre destination for dining and boutiques. Plus, Orange County beaches are just a short drive away! Additional Highlights Include: Exterior deck with single french door, stacking sliding glass door at great room, and electric fireplace. MLS#IG25269042

Basic Information

MLS #:
IG25269042

Price:
$2,664,255

Price
(per sq ft):
$802.00

Address:
205 Briar Moon ,
Irvine, CA 92618

MLS Area:
GP - Great Park

Subdivision:
Other (OTHR)

Property
Type:
Single Family Residence

Days on Market:
2

Status:
Active

Bedrooms:
5

Bathrooms:
5

Full Baths:
4

Size (sq ft):
3,320 sq ft

Lot Size:
4,152 sq ft

Year Built:
2026

Sale Type:
Standard

Rooms in Home

Rooms:
Entry, Great Room, Loft, Main Floor Bedroom, Walk-In Closet, Walk-In Pantry

Eating Area:
Breakfast Counter / Bar, Dining Room

Laundry:
Electric Dryer Hookup, Inside, Upper Level, Washer Hookup

Entry Location:
ground

Interior Features

Fireplace:
Electric, Great Room

Cooling:
Central Air

Heating:
Forced Air

Floor:
Carpet, Tile, Wood

Appliances:
6 Burner Stove, Convection Oven, Dishwasher, Double Oven, Electric Water Heater, Disposal, Microwave, Range Hood

Interior Features:
Open Floorplan, Pantry, Storage

Security:

Accessibility:

Garage and Parking

Garage:
Attached

Garage:
2 Spaces

Carport:
0 Spaces

Parking:

Home Owners Association

HOA Dues 1:
$260.00 / Monthly

HOA Dues 2:
$

HOA Amenities: 
Pool, Fire Pit, Barbecue, Outdoor Cooking Area, Picnic Area, Playground, Dog Park, Tennis Court(s), Paddle Tennis, Bocce Ball Court, Sport Court, Biking Trails, Hiking Trails, Clubhouse, Recreation Room, Meeting Room, Maintenance Grounds, Pets Permitted

Utilities

Water:
Public

Utilities:
Cable Available,Electricity Available,Phone Available,Sewer Available,Water Available

School Information

District:
Saddleback Valley Unified

Elementary:

Middle:

High:

Exterior Features

Pool:
Association, Community, Fenced, Heated, In Ground, Lap

Spa:

Patio:
Patio

View:
Neighborhood

Construction:

Foundation:

Roof:

Windows:

Common Walls:
No Common Walls

Levels:
Two

Lot Features:
Back Yard, Front Yard

Additional Information

County:
Orange

Senior Community:
No

Community Features:
Biking, Curbs, Dog Park, Hiking, Gutters, Park, Watersports, Sidewalks, Storm Drains, Street Lights, Urban

Other Structures:

Structure Condition:
Under Construction

Direction Faces:
South

Listed by:
Taylor Morrison Services , LESLIE OLIVO , 01494642

Co-Listed:

Last
Updated:
12/4/2025 10:55 PM

205 Briar Moon ,
Irvine, CA 92618