

















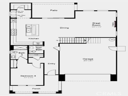
What's Special: Flat Lot | Tub in Primary Bath | Fireplace | Main Floor Bedroom | Loft. New Construction – May Completion! Built by America's Most Trusted Home Builder. Welcome to the Plan 1 at 209 Briar Moon in Aurora at Luna Park! Step into this lovely home, where the welcoming porch leads you into a gentle and inviting foyer. Just off this space sits a charming secondary bedroom with its own bath, along with a convenient half bath nearby. The home opens into a bright great room that flows into the dining area and a spacious kitchen with a generous island, all connecting to a cozy patio that is perfect for everything from lively gatherings to peaceful evenings. Upstairs, two comfortable bedrooms, one with its own bath and another with a shared full bath, and a handy laundry room, sit alongside a cheerful loft that invites game nights and relaxed movie evenings. The private primary suite offers a soothing bath, two walk-in closets and its own quiet deck for morning coffee or evening unwinding. Introducing Aurora at Luna Park, a vibrant part of the Great Park Neighborhoods master plan. Enjoy access to nine parks, 17 pools, lush trails, and The Canopy—an 11-acre destination with dining and boutiques coming in 2027. With beautiful Orange County beaches just a short drive away, this community offers connection, convenience, and coastal living. Additional Highlights Include: Exterior deck with single french door at primary suite and electric fireplace at great room. Photos are for representative purposes only. MLS#IG26048414