



















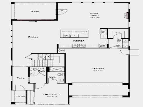
What's Special: Main Floor Bedroom | Loft | Large Kitchen Island | Flat Lot. New Construction – Ready Now! Built by America's Most Trusted Home Builder. Welcome to the Plan 3 at 213 Briar Moon in Aurora at Luna Park! This beautiful new home offers 3,320 square feet of open-concept living that feels bright and effortless. As you head inside, you’ll find a secondary bedroom with its own private en-suite bath and a convenient half bathroom just off the entry. The dining area flows into the kitchen, where a center island opens to the spacious great room, featuring a cozy fireplace. From here, you can step out to the outdoor patio and enjoy fresh air any time you like. A large walk-in pantry sits just off the kitchen near the garage entry, giving you plenty of extra storage. Upstairs, three secondary bedrooms offer room to relax, including one with a private bath. You’ll also find another full bath, a laundry room, and the luxurious primary suite with a spa-inspired en-suite bath and walk-in closet. A generous loft leads to an outdoor deck, and the primary suite provides its own private access as well, creating a wonderful spot to unwind. Introducing Aurora at Luna Park, a vibrant new addition to the prestigious Great Park Neighborhoods master plan. Here, you’ll enjoy a lifestyle centered on connection, comfort, and everyday ease. The community features access to nine parks, seventeen shimmering pools, and miles of lush, meandering trails. Coming in early 2027, The Canopy will bring an exciting 11-acre destination filled with dining, boutiques, and more to explore. And when you’re ready for a day by the ocean, beautiful Orange County beaches are just a short drive away. Additional Highlights Include: Fireplace at great room, multi-stacking sliding glass door at dining area, and an upstairs exterior deck with a single French door at the primary suite and loft. Photos are for representative purposes only. MLS#IG26024801