






























































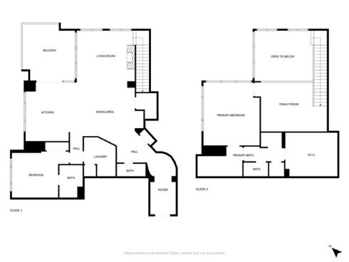
Welcome to an extremely rare TOP-FLOOR PENTHOUSE residence at one of the most coveted addresses in Orange County! Perched on the 15th floor of the exclusive “3000 THE PLAZA”, this stunning 2-story penthouse redefines modern luxury with its sleek design, premium finishes, and breathtaking panoramic views. Boasting 2 spacious bedrooms and 2.5 bathrooms, this home offers an open-concept layout that seamlessly blends style and functionality. The expansive living and dining areas feature soaring ceilings and floor-to-ceiling windows, flooding the space with natural light while showcasing sweeping views of the city and beyond. The gourmet kitchen is a chef’s dream, complete with high-end stainless steel appliances, custom cabinetry, and a large center island perfect for entertaining. The spacious laundry room as well as the first bedroom with an en-suite bathroom are conveniently located on the first level. As you venture upstairs, you will enter into an open loft / media room. Beyond that, the private master suite offers a tranquil retreat with a luxurious en-suite bathroom and an enormous walk-in closet. Back downstairs on the first level, step out onto your private balcony and take in the breathtaking cityscape from this luxurious penthouse condo. Perched high above the bustling streets, this outdoor retreat offers the perfect space to unwind, entertain, or simply enjoy the twinkling city lights below. With panoramic views that stretch for miles, your balcony essentially becomes an extension of your living space. 3000 THE PLAZA offers exquisite hotel-like amenities including a full concierge service, a roof-top pool and cabanas, a Jacuzzi, a fitness center, indoor and outdoor lounge spaces, a billiards room, an enormous club room, and private wine lockers. This is your opportunity to live at the pinnacle of extravagance!