











































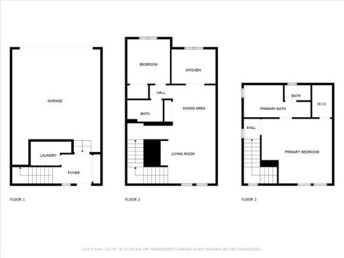
35 Cienega in Irvine's Portola Springs offers a comfortable and convenient living experience within the vibrant San Carlos community. It's a place designed for ease, whether you're starting out or seeking more space. Upon entering, you'll find a dedicated laundry room and direct access to a two-car garage, streamlining your daily routine. The main living level features high ceilings and abundant natural light, creating an open and welcoming atmosphere. The living area flows seamlessly into the dining room and connects to a modern kitchen, boasting white cabinetry, new appliances, and recently upgraded quartz counters. A versatile second bedroom and a full bath on this floor provide flexible options for guests or a home office. The top floor is dedicated to the private primary suite. This space includes a sizable bedroom with a walk-in closet featuring custom shelving and an updated en suite bathroom with new faucets and hardware. Throughout the home, neutral carpet and LVP offer a fresh, cohesive look, complemented by custom baseboards and new recessed lighting. Beyond your door, the active Portola Springs community awaits. You're just steps from Silverado Park, which offers a Jr. Olympic size pool, spa, tennis courts, and basketball courts. A recreation center and clubhouse are available for community gatherings. Numerous other neighborhood parks are also a short walk away, providing ample green space for outdoor enjoyment. Families will appreciate being part of the highly-rated Irvine Unified School District, with Portola Springs Elementary School within walking distance. The location also provides convenient access to major freeways and nearby shopping and dining options. 35 Cienega offers a desirable Irvine location within a community known for its amenities and welcoming atmosphere. This home is ready for its next chapter.