






























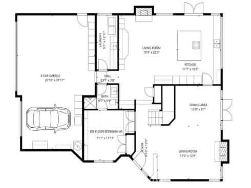
Come see this beautiful Plan 3 former model home by JM Peters, located in the highly desirable Landing II neighborhood near South Lake in Woodbridge, Irvine. This spacious two-story residence has been thoughtfully expanded to include a fifth bedroom, offering extra flexibility for a growing family, home office, or guest accommodations. One bedroom is conveniently located downstairs, and the original first-level floor plan remains intact to maintain the open flow and functionality that made this model so popular. The updated kitchen has been modernized with fresh finishes, added storage, and expanded windows that fill the space with natural light. These windows also frame views of the scenic backyard, where mature trees and colorful landscaping create a peaceful outdoor retreat. The backyard is large yet easy to maintain, ideal for entertaining, relaxing, or spending time with family and friends. Upstairs, you’ll find four spacious bedrooms, including an oversized primary suite that feels like a private retreat. The primary features a large walk-in closet and a generous en-suite bathroom with dual vanities and a walk-in shower, offering comfort and style in equal measure. The home also features owned solar panels, significantly reducing monthly electric costs and adding long-term energy efficiency. Located inside Yale Loop, this home enjoys all the benefits of Woodbridge’s renowned amenities, two beautiful lakes with beach lagoons, scenic walking trails, 22 pools, 24 tennis courts, parks, and playgrounds. The community’s resort-style features, combined with top-rated Irvine Unified schools, make Woodbridge one of the most sought-after neighborhoods in Orange County. The Landing II enclave offers a friendly, established neighborhood feel with tree-lined streets, nearby shopping and dining, and easy access to the 405 and 5 freeways. Whether you’re looking for more space, an ideal family layout, or a home in a community that truly offers it all, this property delivers.