






















































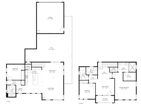
Positioned on an elevated corner lot in a prime location, this newly completed (May 2025) two-story residence offers enhanced privacy, open views, and is within walking distance to Luna Community Park. Thoughtfully designed, the home features 3 bedrooms plus an upstairs loft. The open-concept main level showcases a spacious great room, dining area, and modern kitchen — ideal for both everyday living and entertaining. A first-floor bedroom and full bath provide flexibility for guests, multi-generational living, or a private office. Upstairs, a versatile loft offers additional living space perfect for a media room, study area, or lounge. The private primary suite features a spa-inspired bathroom and generous walk-in closet, while a secondary bedroom and full bath complete the upper level. The backyard is cozy, functional, and private. A detached two-bay garage adds convenience. Located in Luna Park at Great Park Neighborhoods, residents enjoy resort-style amenities including a pool, clubhouse, and scenic trails. With close proximity to the 5 and 405 freeways, award-winning Saddleback Valley schools, and premier shopping and dining at Irvine Spectrum Center, this home offers both comfort and convenience. An exceptional opportunity to own a brand-new home in one of Irvine’s most desirable communities.