























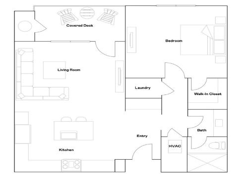
Brand New, contemporary condo located in the Great Park community of Irvine, featuring 1 spacious bedroom, 1 full bath, a luxurious kitchen with brand new appliances, beautiful quartz counters, contemporary white cabinets, a bright open floor plan, interior laundry with brand new washer/dryer, recessed LED lighting, and a large covered deck. The bedroom includes a spacious walk-in closet, wood shelving, and dual-sided mirrored door. This unit is on the second floor, with a large personal storage room across the hall, and an oversized 1 car garage downstairs. Also included is an Owned solar system and solar battery, along with an EV charger in the garage. Resort style community amenities include relaxing pools, spas, sports courts, parks, clubhouses, picnic areas, and walking/bike trails. Minutes away from dining and shopping at Irvine Spectrum and conveniently located near the 5 and 405 freeways. Close to UCI, John Wayne Airport, South Coast Plaza, popular beaches, and shopping centers.