















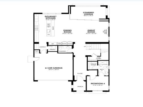
Ground Up Build Opportunity at The Summit in Orchard Hills! View Homesite. Make this home yours by having the ability to personally select structural and designer options with us Living area from 3,500 sq. ft to 3,971 sq. ft. Welcome home to luxury at Vista in Summit at Orchard Hills! Introducing our Brisa floorplan. From the first step into Brisa, you are greeted by 12’ ceilings, inviting you inside. Open concept living offers spacious great room, dining room gourmet chef’s kitchen. Kitchen is complete with Wolf appliance package and walk-in pantry. Step from your great room onto your covered California room. Upstairs your primary bedroom with a tranquil primary bath featuring dual sinks, vanity relaxing soaking tub. Each bedroom features private en suite with walk in closet. Oversized loft is the perfect setting for movie nights, homework stations or home office. Schedule your private tour today!