714-914-4996

673 Beacon ,
Irvine, CA 92618

$1,699,990

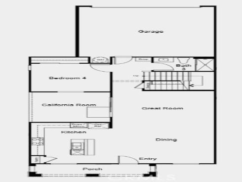
New Construction – October Completion! Built by America's Most Trusted Homebuilder. Welcome to the Plan 1 at 673 Beacon in Ovata at Great Park! Step inside and enjoy an open-concept design where the kitchen overlooks the dining area and great room—perfect for everyday living. The first floor also offers a secondary bedroom and full bath for added flexibility. Upstairs, discover two more bedrooms with a shared bath, a convenient laundry room, and a spacious loft for work or play. The primary suite is a true retreat with a luxurious bath and generous walk-in closet. Live in the heart of it all with access to 17 pools, 9 parks, scenic trails, and a cozy coffee shop. Enjoy top-rated Irvine schools, local dining, and seasonal events at the Great Park Amphitheater. Beaches are just a short drive away, and coming in 2027, The Canopy will bring 11 acres of shopping and dining right to your neighborhood. MLS#IG25188164

Basic Information

MLS #:
IG25188164

Price:
$1,699,990

Price
(per sq ft):
$731.00

Address:
673 Beacon ,
Irvine, CA 92618

MLS Area:
GP - Great Park

Subdivision:

Property
Type:
Single Family Residence

Days on Market:
128

Status:
Pending

Bedrooms:
4

Bathrooms:
3

Full Baths:
3

Size (sq ft):
2,323 sq ft

Lot Size:
2,800 sq ft

Year Built:
2025

Sale Type:
Standard

Rooms in Home

Rooms:
Great Room, Kitchen, Laundry, Living Room, Loft, Main Floor Bedroom, Walk-In Closet

Eating Area:
Dining Room

Laundry:
Gas & Electric Dryer Hookup, Washer Hookup

Entry Location:
ground

Interior Features

Fireplace:
None

Cooling:
Central Air

Heating:
Central

Floor:
Tile

Appliances:
Convection Oven, Dishwasher, Double Oven, Electric Oven, Electric Water Heater, Gas Cooktop, Microwave, Range Hood

Interior Features:
Balcony, High Ceilings, Open Floorplan, Pantry

Security:
Carbon Monoxide Detector(s), Smoke Detector(s)

Accessibility:

Garage and Parking

Garage:
Attached

Garage:
2 Spaces

Carport:
0 Spaces

Parking:

Home Owners Association

HOA Dues 1:
$260.00 / Monthly

HOA Dues 2:
$

HOA Amenities: 
Pool, Spa/Hot Tub, Barbecue, Picnic Area, Playground, Tennis Court(s), Sport Court, Biking Trails, Clubhouse, Pet Rules

Utilities

Water:
Public

Utilities:
Cable Available,Electricity Connected,Sewer Connected,Water Connected

School Information

District:
Irvine Unified

Elementary:

Middle:

High:
PORTO

Exterior Features

Pool:
Community

Spa:
Community

Patio:
Covered, Deck, Porch

View:
Neighborhood

Construction:

Foundation:

Roof:

Windows:

Common Walls:
No Common Walls

Levels:
Two

Lot Features:
Front Yard, Rectangular Lot, Level, Zero Lot Line

Additional Information

County:
Orange

Senior Community:
No

Community Features:
Biking, Park, Sidewalks

Other Structures:

Structure Condition:

Direction Faces:
South

Listed by:
Taylor Morrison Services , LESLIE OLIVO , 01494642

Co-Listed:

Last
Updated:
1/31/2026 10:09 AM

673 Beacon ,
Irvine, CA 92618