




































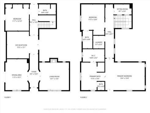
LOCATION, LOCATION, LOCATION! WELCOME HOME TO ONE OF THE BEST LOCATION OF COMMUNITY IN WOODBURY NEIGHBOHOOD. THIS FRESHLY PAINTED STAGED BEAUTY HAS IT ALL. AS YOU ENTER THE HOME THE INVITING GOOD SIZE LIVING ROOM AND ROMANTIC FIREPLACE WILL WELCOME YOU! THE FORMAL DINING AREA ACROSS FROM THE LIVING ROOM IS GREAT FOR ENTERTAINING GUESTS WITH AN ATTACHED PATIO. HUGE KITCHEN WITH STAINLESS APPLIANCESS AND WATER FILTRATION FOR DRINKING WATER. THE PATIO OFF OF THE KITCHEN IS PERFECT FOR ENJOYING YOUR COFFEE EVERY MORNING! THE CONVINIENT BEDROOM DOWN STAIRS WITH A FULL BATH IS PERFECT TO USE IT AS AN OFFICE OR FOR IN LAWS AND GUESTS. AS YOU GO UPSTAIRS THE LOFT AREA IS GREAT TO SET UP FOR A DESK OR LIBRARY. THE SECONDARY BEDROOM UPSTAIRS HAS ITS OWN BATH. THE LAUNDRY ROOM IS ALSO UPSTAIRS WITH THE DRYER INCLUDED. PRIMARY BEDROOM IS VERY GOOD SIZE WITH TWO VANITIES AND ROMAN TUB PERFECT FOR RELAXING AFTER WORK. THIS HOME ALSO IS SET UP FOR SECURITY SYSTEM AND THE GARAGE HAS A NEWER QUIET MOTOR. THIS UNIT IS ACROSS FROM THE PLAY GROUND AND SHORT DISTANCE TO GREAT SCHOOLS, SHOPPING CENTER AND FREEWAY. WHAT A FANTASTIC PLACE TO CALL HOME!