












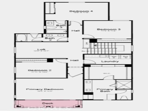
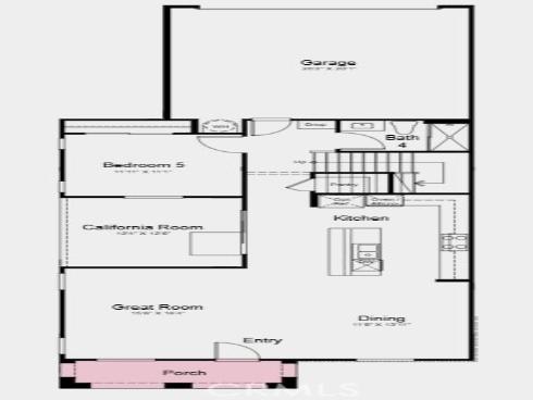
What's Special: Corner Lot | Covered Patio | Loft | 1st Floor Guest Bedroom. New Construction – June Completion! Built by America's Most Trusted Home Builder. Welcome to the Plan 3 at 91 Interval in Ovata at Great Park! Welcome to a charming front porch that sets the tone for the whole home. Step inside to a bright great room that flows into the dining area and an open kitchen with a cozy island and a spacious walk-in pantry. The first floor includes a comfortable bedroom with a shared full bath nearby, perfect for guests or extended family, along with a lovely California room for indoor-outdoor living. Upstairs, the primary suite feels like a retreat with its oversized walk-in closet, roomy shower, and dual vanities. Three additional bedrooms, two full baths, a loft, and a convenient laundry room complete the second floor, giving everyone space to unwind and feel at home. Live in the heart of it all with top Irvine schools, endless amenities, and vibrant local experiences. Enjoy 17 pools, 9 parks, a cozy coffee shop, and miles of scenic trails. Catch live music and seasonal events at the Great Park Amphitheater, and enjoy OC beaches just a short drive away. Coming in 2027, The Canopy will add 11 acres of dining and shopping. Photos are for representative purposes only. MLS#IG26037336