

















































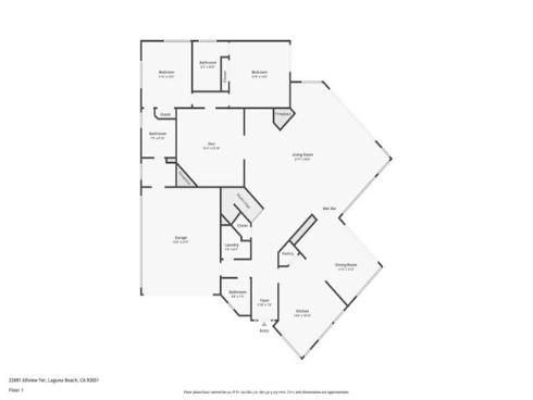
Price Improvement!! Perched within the gated enclave of Allview Terrace, this rare offering captures the very best of Laguna Beach living — sweeping ocean, coastline, and hillside views paired with privacy and seclusion, all while being just moments from downtown and the beach. A long, private driveway sets the stage for this special residence, creating a sense of arrival and exclusivity. Upon entry, you’re greeted by expansive living spaces oriented to take in 280° views stretching from the southern coastline and Hotel Laguna to Catalina Island, North Laguna, Shaw’s Cove, and the green hills of the Dartmoor Hiking Trail. Walls of Andersen windows and oversized sliding glass doors flood the interiors with light and seamlessly connect to spacious view decks — perfect for entertaining or simply enjoying Laguna’s famed sunsets beneath the silhouette of a Torrey pine. The main living area features wood flooring, a centerpiece fireplace with a custom mantle, and a wet bar, while the adjacent dining area and kitchen are designed to maximize the panoramic setting. A powder room and laundry are also on this level. The cozy library/den, complete with floor to ceiling built-in shelving, fireplace and skylight, offers a quiet retreat for reading or work. Two en-suite bedrooms are located on the main level — one with French windows and doors opening to balcony deck and ocean views, the other with a skylight and full bath. Upstairs, the primary suite provides a private sanctuary with vaulted ceilings, a viewing deck over North Laguna, walk-in closet, and a spa-like bath featuring dual sinks, a soaking Jacuzzi tub, walk-in shower, and private water closet. A bonus office/den area completes this upper retreat. Set on an oversized lot with mature coastal landscaping and adjacent to the historic Hortense Miller Garden, the property also offers a two-car garage and parking for up to six additional vehicles. 22691 Allview Terrace is a rare combination of dramatic views, privacy, and security — part of a gated enclave of only 32 homes with controlled-access access — all while being just minutes from downtown Laguna Beach, local beaches, shopping and restaurants.