
















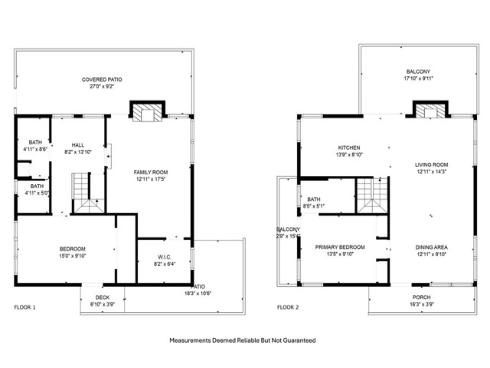
“Rare Opportunity Won’t Last” A Hidden Gem in South Laguna Village. Some homes are more than just properties—they’re legends waiting to be reimagined. Tucked away in the heart of South Laguna Village, The Gumball House is a one-of-a-kind coastal cottage with a story as colorful as its past. Once the sanctuary of a collector of penny arcades and gumball machines, this treasure is brimming with character, OCEAN VIEWS, and the promise of something extraordinary. This two-story, 3-bedroom retreat offers a rare blend of vintage charm and endless possibilities. Step inside to discover vaulted ceilings, original wood floors, and a wood-burning fireplace that beckons cozy nights by the sea. Sunlight pours through expansive windows, framing ocean vistas and filling the space with a warm, inviting glow. From the private patio—your own secluded oasis—to the ocean-view balcony where sunsets steal the show, every corner of this home whispers potential. The flexible layout is a dream for visionaries: the lower level, with two bedrooms, a walk-in closet in the primary, ample storage, and an indoor laundry area, can transform into a guest suite, income-producing rental, or inspiring creative space. Upstairs, the open design and timeless bones set the stage for your personal touch—whether you envision a modern beach haven or a nod to its eclectic past. Just blocks from the sand and surf, this South Laguna gem puts the best of Laguna Beach at your doorstep. Stroll to charming cafés, savor fresh seafood at local haunts, or hop on the trolley to explore the vibrant main village—home to art galleries, boutiques, and the iconic Sawdust Festival. Wander through Heisler Park, catch a world-class sunset, or lose yourself in the wonder of the Pageant of the Masters. This isn’t just a home; it’s a lifestyle. The Gumball House is a canvas of opportunity in one of California’s most coveted coastal enclaves. Homes with this much soul, history, and jaw-dropping views don’t come along often. Ready to write its next chapter? This Laguna Beach icon could be yours.