





































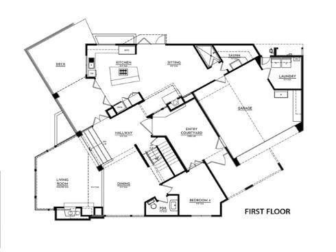
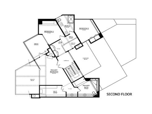
Rare Coastal Opportunity in Laguna Beach’s Coveted Portafina Neighborhood 741 Marlin Drive - Welcome to this hidden gem nestled in the highly sought-after Portafina community—a peaceful, ocean-view enclave perched above Victoria Beach. This 4-bedroom, 2.5-bath soft contemporary home is situated on a quiet, single-loaded cul-de-sac, offering a unique blend of privacy, architectural character, and untapped potential in one of Laguna’s most desirable neighborhoods. As you step through the front courtyard, you'll be greeted by a sun-filled foyer featuring vaulted ceilings, oversized picture windows, and three inviting fireplaces that create a warm atmosphere throughout the home. The split-level layout includes a main-level guest bedroom with convenient courtyard access, an open-concept kitchen boasting sweeping ocean views, and a spacious deck—perfect for relaxing or entertaining while enjoying breathtaking sunsets. The primary suite is a true retreat, showcasing panoramic ocean vistas, an ensuite bath, a private balcony, and a soothing sense of tranquility. Additional highlights include a cozy family room, a sauna with a separate shower, and thoughtful updates that enhance the home’s charm and functionality .With solid bones, incredible views, and ample space to add an ADU, this property represents a rare opportunity to customize and add value—whether you’re a first-time homebuyer, an investor, or someone seeking to craft their ideal coastal retreat. Don’t miss your chance to own a piece of paradise in Laguna Beach!