






























































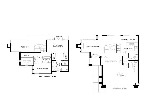
DON'T MISS OUT!!Live the good life in the coveted gated community of Siena and fall in love with this OPENED UP concept home that exceeds expectations! UPGRADED THREE BEDROOMS (one downstairs with closet built in- currently being used as office/with 3/4 remodeled bathroom downstairs) UPGRADED 3 BATHROOMS, PLUS LOFT is ideally located in the community on a CORNER LOCATION and has exquisite finishes of hardwood and porcelain tiled floors, Carrara marble, and impressive windows that face a stunning view of hills, nature and gives you exceptional privacy! Right when you walk in through double glass doors, you are swept away by the soaring ceilings, gorgeous tiled to the ceiling fireplace and ceiling height windows! The kitchen is impressive and is open to living an indoor-outdoor lifestyle that is spacious, with a gorgeous Carrara marble countertop and backsplash, plus modern GE Monogram Stainless Steel appliances to include dual ovens, dishwasher, wine refrigerator, and a 5-gas burner stove! Primary bedroom has vaulted ceilings and dual doors that draw you to the deck that is perfect for coffee and views in the morning! Spa like bathroom has an extra-large shower in Carrara marble, stunning subway tile on the surrounding walls, and a stand-alone soaking tub plus shaker dual sink vanity with Carrara marble countertops! Upstairs the third spacious bedroom is en-suite with its own bathroom with marble showered/tub details and countertop! Garden oasis beckons enjoyment with a large patio under a pergola and grassy area that wraps around the corner of the home capturing hillside and nature views! Other noteworthy upgrades are newer Lenox AC, shutters, water softener and more. Gated Siena sits within coveted coastal Marina Hills and has its own pool/spa, front yard maintenance, however Siena residents also get to enjoy the main Marina Hill's clubhouse, Jr Olympic pool, tennis and pickleball courts, bocce ball and parks close by! And do not miss the ease in proximity to the Salt Creek trail to hike/bike to the Waldorf Hotel and Salt Creek beach! Don't miss out on living the good life of Siena!