





























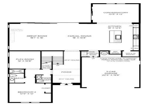
Welcome to The Sequoias, a new community located in Lake Forest, which is close to everyday amenities including shopping, restaurants, entertainments and sports facilities as well as financial institutions. Home site 26 is a new construction home that is situated on a nice sized lot with west facing backyard. The Sagewood floor plan features 5 bedrooms, with 5.5 bathrooms, and is approximately 3,993 sq. ft with the added conservatory and primary bedroom retreat, with a 2 car garage. Upon entering the home you are greeted with a 2-story foyer, the chef inspired kitchen with upgraded white shaker style cabinets showcased with premium Wolf/Sub-Zero appliances, quartz counter tops, and sleek Kohler fixtures. The luxurious primary bedroom offers a tranquil retreat with a spacious sitting area, a walk-in closet, a spa-like shower, and a freestanding soaking tub. The secondary bedrooms each with their own en-suite ensure both comfort and privacy for everyone. Highlights of the home are a first-floor bedroom, complete with a private bath and a versatile flex room. The community amenities include a clubhouse with 2 pools, 2 spas as well as BBQ and lounge areas. Home site 26, has an estimated closing date of Spring 2026. Photos provided are of the model home, actual home is under construction.